Objektbeschreibung
In der Canavesegasse 4, eingebettet in eine ruhige und beliebte Wohngegend des 23. Wiener Gemeindebezirks, entsteht mit CANAVESE ein hochwertiges Neubauprojekt der Chronos Wohnbau Gruppe. Die Lage verbindet angenehme Zurückgezogenheit mit sehr guter urbaner Anbindung und bietet eine Wohnqualität, die Ruhe, Grün und Infrastruktur in ausgewogener Weise vereint.
Atzgersdorf steht für gewachsene Strukturen,
Mehr lesen
Objekt ID: 2615879
Preis: € 585.400
Nutzfläche: 99 m2
Gesamtfläche: 0 m2
Ziimmer insgesamt: 5
Schlafzimmer: 5
Badezimmer: 1
Nutzungsart: Anlage
HWB: 31 kWh/(m²*a)
HWB Klasse: B
FGEE: 0.75
E-Ausweis Gültig Bis:: 02.01.2036
Energieausweis Art: Bedarf
Anzahl Balkone: 1
Balkon/Terrassen - Fläche: 35
Beziehbar: Herbst 2027
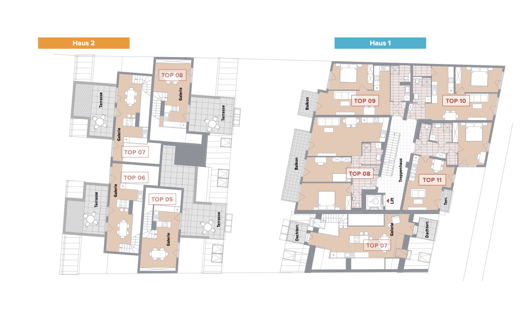
Etage: 1. Etage / 1.OG + 2.OG
WC: 1
Abstellräume: 1
Balkon
barrierefrei
Neubau
Personenaufzug
Gäste-WC
Parkett
Dusche
Fußbodenheizung
Fahrradraum
Abstellraum
Massiv
Massivbauweise
Räume veränderbar
Tiefgarage
Ähnliche Objekte
Exklusive Dachgeschosswohnung mit 2 Terrasse...
€ 889.000
3
Schlafzimmer
2
Badezimmer
119 m2
Größe
Mai 3, 2026
EARLY BIRD! Die ersten 3 Wohnungen zum Sensa...
€ 295.920
3
Schlafzimmer
1
Badezimmer
56 m2
Größe
Mai 3, 2026
***Sanierungsbedürftige 2,5 Zimmer-Wohnung n...
€ 214.000
2
Schlafzimmer
1
Badezimmer
60 m2
Größe
Mai 3, 2026















