Objektbeschreibung
In der Canavesegasse 4, eingebettet in eine ruhige und beliebte Wohngegend des 23. Wiener Gemeindebezirks, entsteht mit CANAVESE ein hochwertiges Neubauprojekt der Chronos Wohnbau Gruppe. Die Lage verbindet angenehme Zurückgezogenheit mit sehr guter urbaner Anbindung und bietet eine Wohnqualität, die Ruhe, Grün und Infrastruktur in ausgewogener Weise vereint.
Atzgersdorf steht für gewachsene Strukturen,
Mehr lesen
Objekt ID: 2615907
Preis: € 498.500
Nutzfläche: 92 m2
Gesamtfläche: 0 m2
Ziimmer insgesamt: 4
Schlafzimmer: 4
Badezimmer: 1
Nutzungsart: Anlage
HWB: 31 kWh/(m²*a)
HWB Klasse: B
FGEE: 0.75
E-Ausweis Gültig Bis:: 02.01.2036
Energieausweis Art: Bedarf
Balkon/Terrassen - Fläche: 18
Beziehbar: Herbst 2027
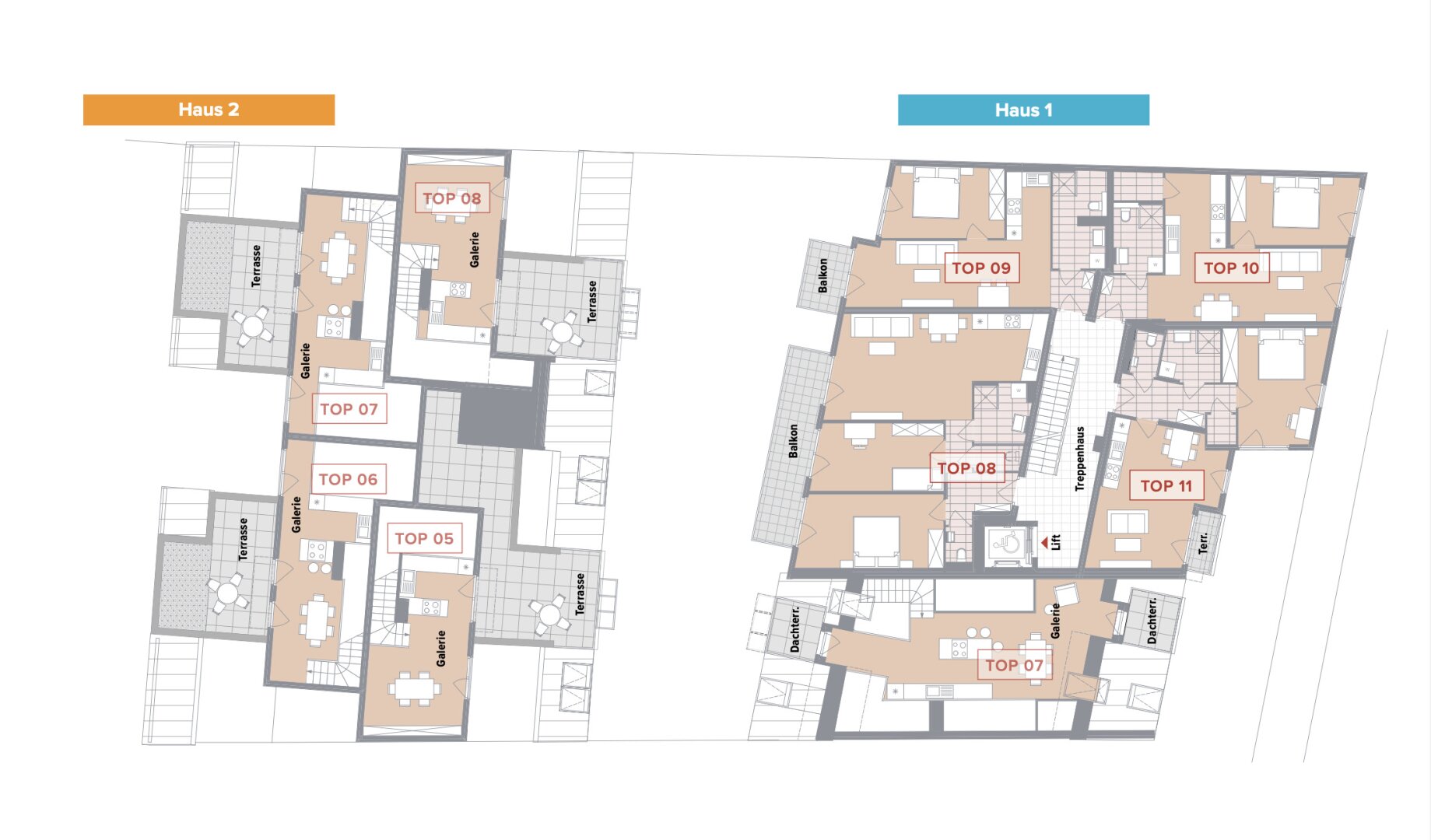
Etage: 1. Etage / 1.OG + 2.OG
WC: 2
Abstellräume: 1
barrierefrei
Neubau
Personenaufzug
Gäste-WC
Parkett
Dusche
Fußbodenheizung
Fahrradraum
Abstellraum
Massiv
Massivbauweise
Räume veränderbar
Ähnliche Objekte
Exklusive Dachgeschosswohnung mit 2 Terrasse...
€ 889.000
3
Schlafzimmer
2
Badezimmer
119 m2
Größe
Mai 3, 2026
EARLY BIRD! Die ersten 3 Wohnungen zum Sensa...
€ 295.920
3
Schlafzimmer
1
Badezimmer
56 m2
Größe
Mai 3, 2026
***Sanierungsbedürftige 2,5 Zimmer-Wohnung n...
€ 214.000
2
Schlafzimmer
1
Badezimmer
60 m2
Größe
Mai 3, 2026















