Objektbeschreibung
Ein Zinshaus mit vielen Möglichkeiten!
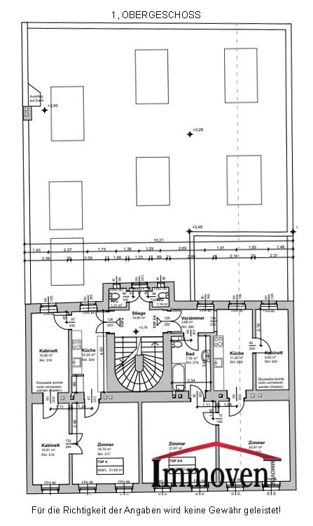
Dieses Haus mit einer Nutzfläche von ca. 690 m² ist folgendermaßen aufgeteilt:
+ 11 Wohneinheiten (in den Kategorien A, B und C)
+ Geschäftslokal
+ Keller
+ Rohdachboden
+ Garage
Nach diversen Sanierungsarbeiten erhielten die Wohneinheiten folgende Neuerungen:
+ neue
Mehr lesen
Dokumente
Objekt ID: 2617322
Preis: € 2.500.000
Nutzfläche: 0 m2
Gesamtfläche: 690 m2
Ziimmer insgesamt: 0
Schlafzimmer: 0
Badezimmer: 0
Nutzungsart: Anlage
Provisionspflichtig: ja
Provision: 3% des Kaufpreises zzgl. 20% USt.
Einbauküche
Altbau
Etagenheizung
Parkett
Dusche
Fahrradraum
Elektro
Wasch-/Trockenraum














