Objektbeschreibung
Diese stilvolle Eigentumswohnung befindet sich in einer gepflegten, modernen Wohnanlage im 22. Wiener Gemeindebezirk und überzeugt durch ihre hochwertige Ausstattung, die durchdachte Raumaufteilung sowie ihre ruhige Lage mit ausgezeichneter Infrastruktur.
Eine seltene Gelegenheit für anspruchsvolle Anleger und künftige Eigennutzer, die Wert auf Qualität, Lage und nachhaltige Investitionssicherheit legen.
Wesentliche
Mehr lesen
Dokumente
Objekt ID: 2618674
Preis: € 435.000
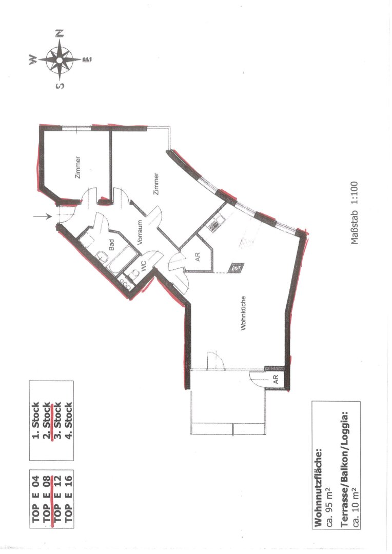
Nutzfläche: 95 m2
Gesamtfläche: 0 m2
Ziimmer insgesamt: 3
Schlafzimmer: 3
Badezimmer: 1
Nutzungsart: Anlage
Provisionspflichtig: ja
Provision: 3% des Kaufpreises zzgl. 20% USt.
Balkon/Terrassen - Fläche: 10
Beziehbar: 2029
Etage: 2. Etage / 2
WC: 1
Neubau
WG-geeignet
Personenaufzug
Gas
Kabel/Sat-TV
Fahrradraum
offene Küche
Offene Küche
vollerschlossen
Estrich
Swimmingpool
Räume veränderbar
Tiefgarage
Ähnliche Objekte
Ruhige, top-renovierte 2-Zimmer Wohnung im H...
€ 241.000
2
Schlafzimmer
1
Badezimmer
44 m2
Größe
Mai 4, 2026

















