Objektbeschreibung
ERSTBEZUG, Doppelhaushälfte in Untermauerbach in absoluter Grünruhelage! Haus 5A / 5B
+ Ziegelmassivbauweise
+ 2 Parkplätzen vor der Tür
+ Fussbodenheizung mittels effizienter Vaillant Erdwärmepumpe
+ Fussbodenkühlung mittels Erdwärmepumpe
+ Inklusive Küche, Badezimmerausstattung und Zentralstaubsauger
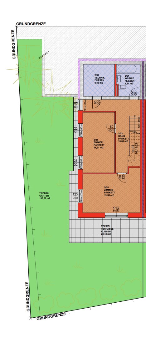
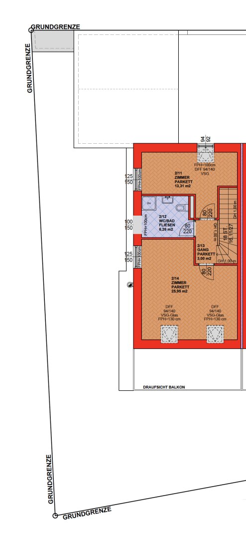
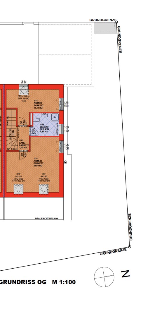
+ 5 Zimmer, 170,19 m² Wohnnutzfläche, 22,43 m² Terrasse, 13,80 m2 Balkon,
Mehr lesen
Objekt ID: 2620187
Preis: € 2.390.30
Nutzfläche: 170 m2
Gesamtfläche: 0 m2
Ziimmer insgesamt: 5
Schlafzimmer: 5
Badezimmer: 2
Miete (netto) €: 2003
USt €: 217.3
Gesamtbelastung €: 2390.3
Nutzungsart: Wohnen
Provisionspflichtig: nein
Kaution: 10.000,00 €
HWB: 36,50 kWh/(m²*a)
HWB Klasse: B
FGEE: 0.7
E-Ausweis Gültig Bis:: 17.07.2032
Energieausweis Art: Bedarf
Anzahl Balkone: 1
Balkon/Terrassen - Fläche: 36
Beziehbar: sofort
WC: 3
Abstellräume: 1
Balkon
Neubau
Gäste-WC
Parkett
Bad mit Fenster
Fußbodenheizung
offene Küche
Abstellraum
Offene Küche
Rollläden
Freiplatz
vollerschlossen
Wasch-/Trockenraum
Gartennutzung
Neubaustandard
Erdwärme
Kabelkanäle
Mansarddach
Ähnliche Objekte
ERSTBEZUG! Doppelhaushälfte mit 170 m2 Wohnf...
€ 2.590.50
5
Schlafzimmer
2
Badezimmer
170 m2
Größe
November 10, 2025











