Objektbeschreibung
Die Wohnung:
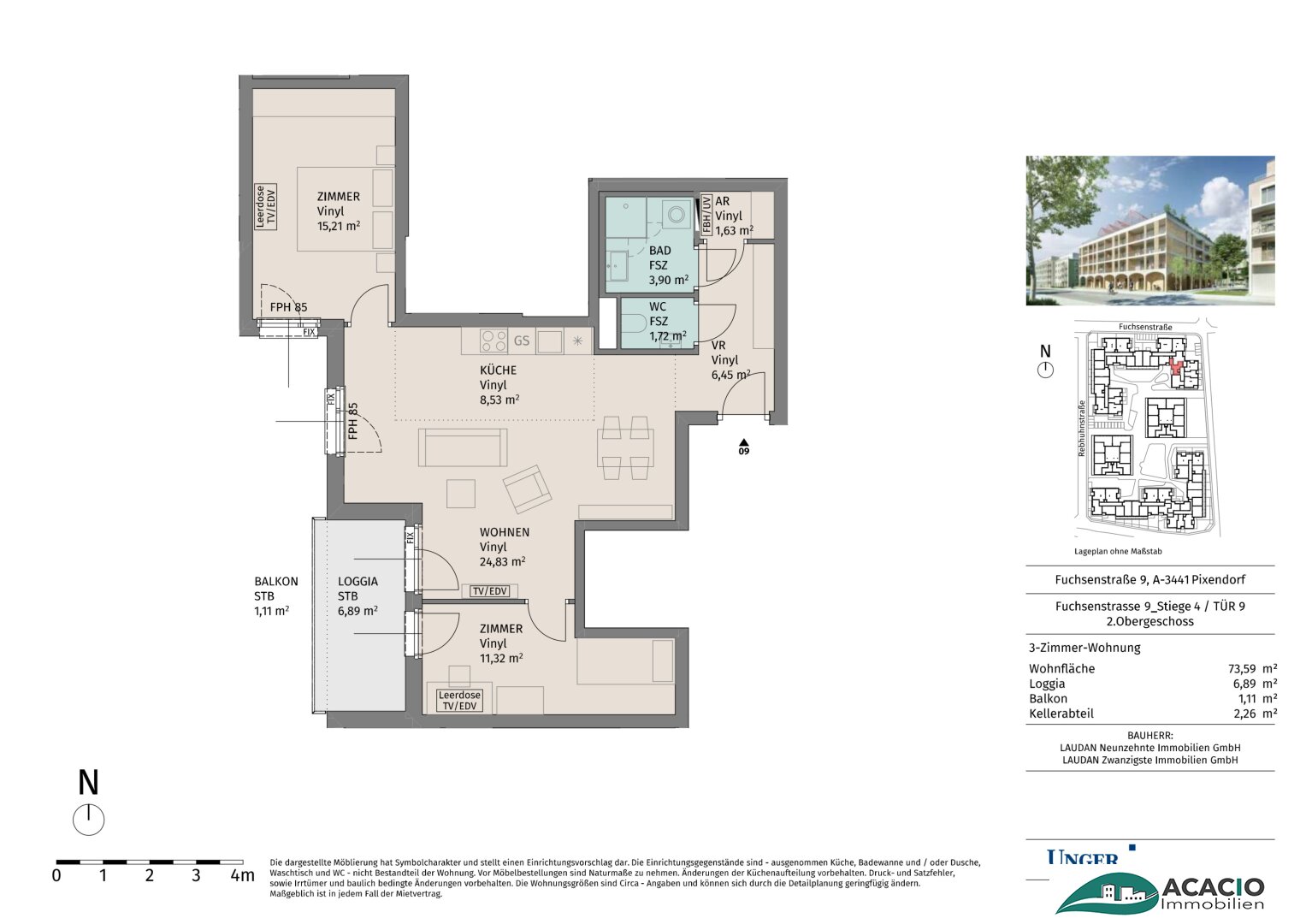
Diese ansprechende 3-Zimmer-Neubauwohnung verfügt über eine Wohnfläche von ca. 73,59 m².
Die WOHNUNG teilt sich wie folgt auf:
– Vorraum
– Wohnbereich mit offener Küche
– 2 Zimmer
– Badezimmer mit Dusche (Waschmaschinenanschluss vorhanden)
– WC extra
– Abstellraum
Mehr lesen
Objekt ID: 2626042
Preis: € 996
Nutzfläche: 74 m2
Gesamtfläche: 0 m2
Ziimmer insgesamt: 3
Schlafzimmer: 3
Badezimmer: 1
Miete (netto) €: 700.87
USt €: 90.55
Gesamtbelastung €: 996
Nutzungsart: Wohnen
Provisionspflichtig: nein
HWB: 25,80 kWh/(m²*a)
FGEE: 0.8
Energieausweis Art: Bedarf
Balkon/Terrassen - Fläche: 8
Beziehbar: sofort
Etage: 2. Etage
WC: 1
Abstellräume: 1
Einbauküche
Dusche
Fußbodenheizung
Fahrradraum
offene Küche
Abstellraum
Offene Küche
Freiplatz
Wasch-/Trockenraum
Fernwärme
Kunststoff
Ähnliche Objekte
großzügige 2-Zimmerwohnung mit Terrasse und ...
€ 995
2
Schlafzimmer
1
Badezimmer
63 m2
Größe
Mai 7, 2026
wunderschöne 3-Zimmerwohnung mit großer Logg...
€ 1.150
3
Schlafzimmer
1
Badezimmer
69 m2
Größe
Mai 7, 2026
















