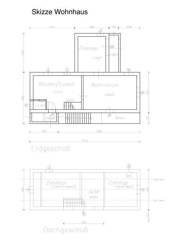
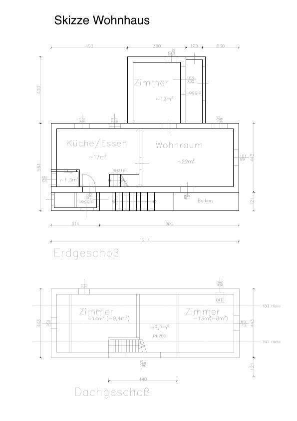
Objektbeschreibung
Charmantes Landhaus in idyllischer Lage von Großstübing.
Das Anwesen umfasst eine großzügige Fläche von 2,5 Hektar und bietet herrliche Ruhe inmitten der Natur
Das Hauptgebäude verfügt über eine Solaranlage und eine effiziente Holzheizung mit einem Scheitholzkessel sowie einen Kachelofen.
Zu den Nebengebäuden gehören ein zweites Haus mit einer Garage
Mehr lesen
Objekt ID: 26349
Preis: € 410.000
Nutzfläche: 140 m2
Gesamtfläche: 24.000 m2
Ziimmer insgesamt: 0
Schlafzimmer: 0
Badezimmer: 0
Nutzungsart: Wohnen
Provisionspflichtig: ja
Provision: 3% des Kaufpreises zzgl. 20% USt.
Zentralheizung
Massiv
Massivbauweise
Holz-Hackschnitzel
als Ferienimmobilie nutzbar
Satteldach










































