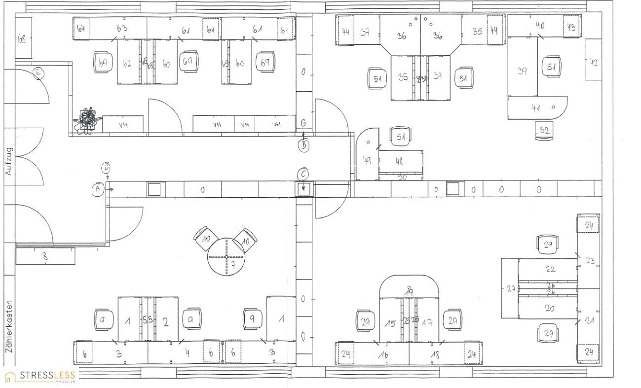
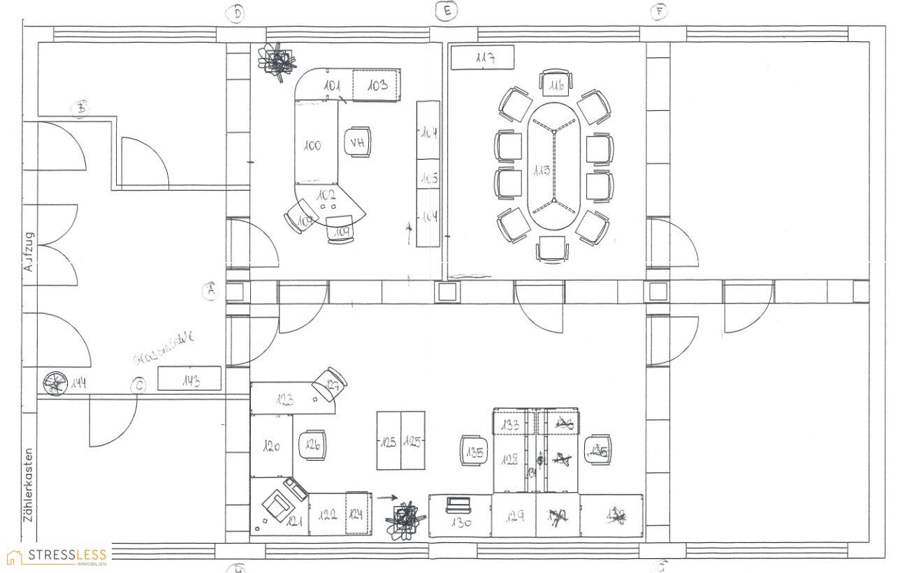
Objektbeschreibung
Dieses 2stöckige, voll unterkellerte Bürogebäude befindet sich in zentraler Lage von Korneuburg und bietet Ihnen auf ca. 320 m² vielerlei Möglichkeiten (siehe bitte Pläne).
Zur Vermietung gelangt dieses 2stöckige Bürogebäude nur wenige Gehminuten vom Zentrum bzw. vom Bahnhof Korneuburg entfernt.
Das Bürohaus verfügt über mehrere, veränderbare Zimmer, die für flexible
Mehr lesen
Objekt ID: 2640284
Nutzfläche: 0 m2
Gesamtfläche: 2.200 m2
Ziimmer insgesamt: 0
Schlafzimmer: 0
Badezimmer: 0
Nutzungsart: Gewerbe
HWB: 150,40 kWh/(m²*a)
HWB Klasse: D
FGEE: 1.73
E-Ausweis Gültig Bis:: 19.10.2032
Energieausweis Art: Bedarf
Beziehbar: nach Vereinbarung
Max. Mietdauer: unbefristet
Gas
teilmöbliert
vollerschlossen













