Erweiterte Suche
Suchagent aktivieren
Exklusive Anzeigen

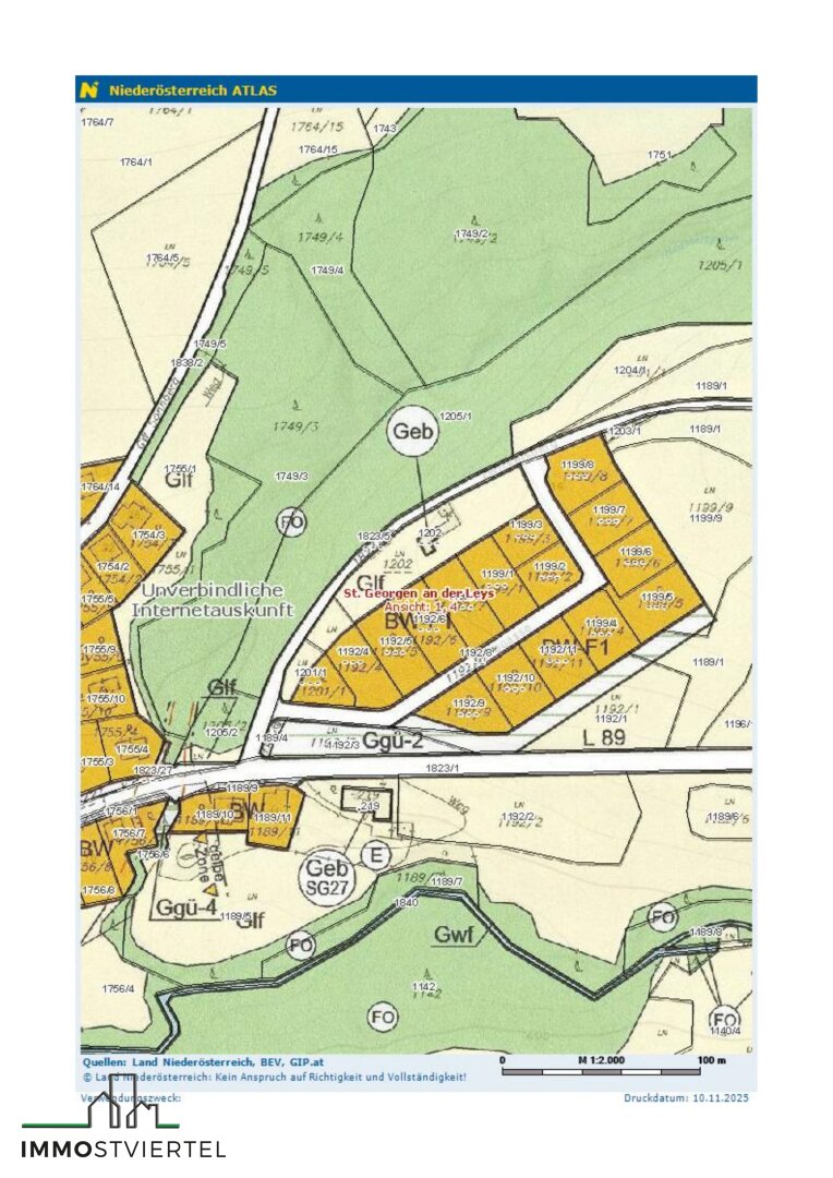
Baugrundstück am Ortrand von St. Georgen an der Leys in Aussichtslage!

€ 56.340,00

,

zu Favoriten hinzufügen
teilen
Suchergebnisse

Objektbeschreibung

* Sie suchen den perfekten Baugrund für Ihr neues zu Hause 

* Sie legen dabei viel Wert auf ruhige Lage und Wohnqualität?

* dann wäre diese Bauparzelle die Richtige für Ihr Bauvorhaben

* nur noch wenige Baugründe zur Auswahl

* Sonnige Südhangaussichtslage

* Hebesatz/Aufschließungskosten: € 520,-

* Flächenwidmung „Bauland Wohngebiet“
Mehr lesen

Bezirk:
Bundesland:
PLZ: 3282
Land: Österreich
Objekt ID: 2647526
Preis: € 56.340
Nutzfläche: 0 m2
Gesamtfläche: 939 m2
Ziimmer insgesamt: 0
Schlafzimmer: 0
Badezimmer: 0
Nutzungsart: Wohnen
Provisionspflichtig: ja
Provision: 2.028,24 € inkl. 20% USt.

Vergleichen