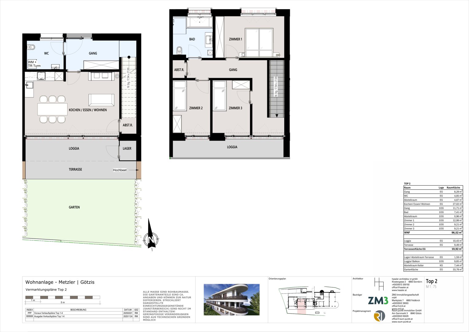
Objektbeschreibung
Ihre neue Wohnung | Modern & Stilvoll
Entdecken Sie eine wunderschöne Wohnung in einer hochwertigen Klein-Wohnanlage.
4-Zimmer-Massionettewohnung im Erdgeschoss und 1. Obergeschoss – lichtdurchflutet, modern, funktional und ab 01.04.2026 beziehbar.
AUSSTATTUNGS-HIGHLIGHTS:
* großzügige Küche mit hochwertigen Miele-Geräten
* Bad mit Fenster, Dusche & Badewanne
*
Mehr lesen
Dokumente
Objekt ID: 2656374
Preis: € 2.299
Nutzfläche: 97 m2
Gesamtfläche: 0 m2
Ziimmer insgesamt: 4
Schlafzimmer: 4
Badezimmer: 1
Miete (netto) €: 1791.73
USt €: 203.03
Gesamtbelastung €: 2299
Nutzungsart: Wohnen
Provisionspflichtig: nein
Kaution: 3 Bruttomonatsmieten
HWB: 32,60 kWh/(m²*a)
HWB Klasse: B
FGEE: 0.56
E-Ausweis Gültig Bis:: 17.12.2034
Energieausweis Art: Bedarf
Balkon/Terrassen - Fläche: 29
Beziehbar: 01.04.2026
Etage: EG / EG + 1. OG
WC: 2
Abstellräume: 2
Neubau
Personenaufzug
Gäste-WC
Parkett
Bad mit Fenster
Fußbodenheizung
Kabel/Sat-TV
Fahrradraum
offene Küche
Abstellraum
Offene Küche
Klimaanlage
Massiv
Massivbauweise
vollerschlossen
schlüsselfertig mit Keller
seniorengerecht
Tiefgarage
Flachdach
Neubaustandard
Erdwärme
Reinigung
Ähnliche Objekte
Im Herzen von Götzis: 3-Zimmerwohnung zu ver...
€ 950
3
Schlafzimmer
1
Badezimmer
67 m2
Größe
Mai 8, 2026
Großzügige 1-Zimmer-Terrassenwohnung in Götz...
€ 965
1
Schlafzimmer
1
Badezimmer
53 m2
Größe
Mai 8, 2026

















