Objektbeschreibung
Der Grundstein ist gelegt – jetzt sind Ihre Ideen gefragt! Dieses interessante Einfamilienhaus in 2700 Wiener Neustadt bietet Ihnen die seltene Gelegenheit, Ihre Wohnträume ganz nach Ihren eigenen Vorstellungen zu verwirklichen.
Das Haus wurde bereits teilweise saniert und befindet sich im Innenbereich im Rohzustand. Die Immobilie wurde entkernt, der alte Estrich
Mehr lesen
Objekt ID: 2657402
Preis: € 349.000
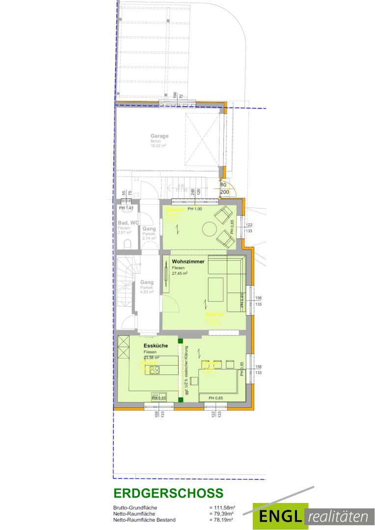
Nutzfläche: 97 m2
Gesamtfläche: 76 m2
Ziimmer insgesamt: 4
Schlafzimmer: 4
Badezimmer: 2
Nutzungsart: Wohnen
Provisionspflichtig: ja
Provision: 3% des Kaufpreises zzgl. 20% USt.
HWB: 233 kWh/(m²*a)
HWB Klasse: F
FGEE: 3.23
E-Ausweis Gültig Bis:: 06.08.2033
Energieausweis Art: Bedarf
Beziehbar: Nach Vereinbarung
WC: 2
Altbau
Gas
Zentralheizung
Freiplatz
Massiv
Massivbauweise
vollerschlossen
Räume veränderbar
Satteldach
Mansarddach

















