Objektbeschreibung
Objektbeschreibung
Inmitten des aufstrebenden Kapfenbergs bietet sich Ihnen eine seltene Gelegenheit: Im 5. Obergeschoss eines
gepflegten Gebäudes in der Wiener Straße 46 wartet diese ca. 272 m² große Einheit auf ihre Neubelebung. Einst als
renommierte Ordination genutzt, vereint das Objekt solide Bausubstanz, flexible Grundstruktur und zentrale Lage
Mehr lesen
Dokumente
Objekt ID: 2666886
Preis: € 250.000
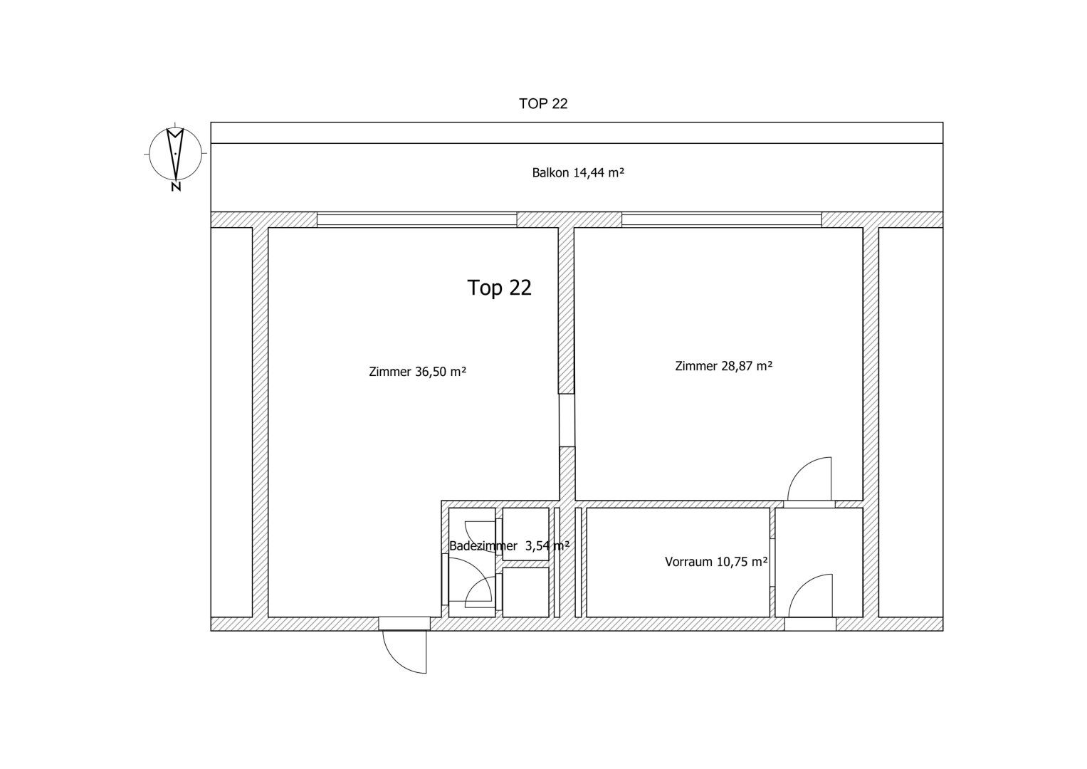
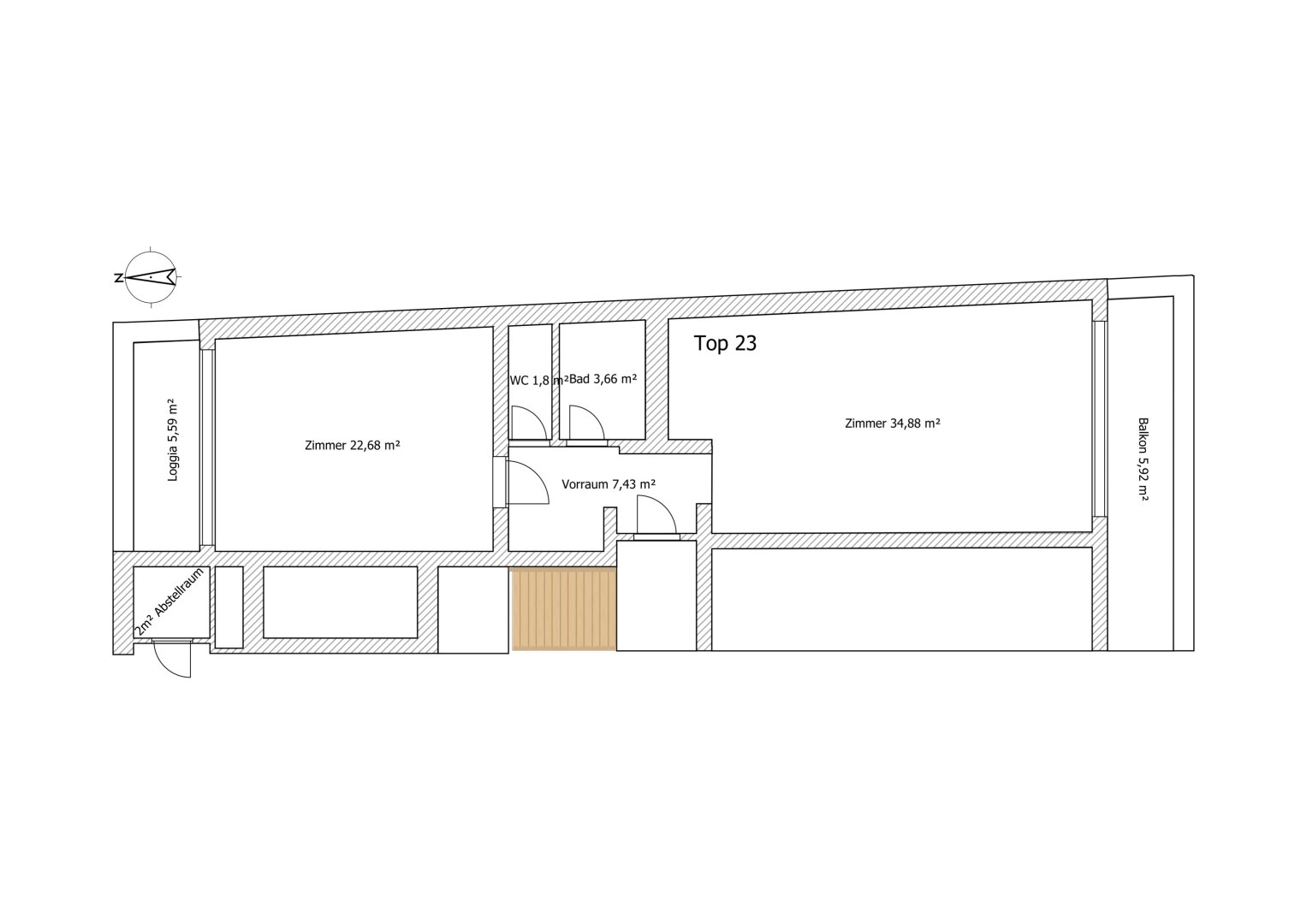
Nutzfläche: 273 m2
Gesamtfläche: 1.139 m2
Ziimmer insgesamt: 10
Schlafzimmer: 10
Badezimmer: 3
Betriebskosten €: 534
Nutzungsart: Anlage
Provisionspflichtig: ja
Provision: 3% des Kaufpreises zzgl. 20% USt.
HWB: 137,70 kWh/(m²*a)
HWB Klasse: D
FGEE: 1.98
E-Ausweis Gültig Bis:: 02.06.2035
Energieausweis Art: Bedarf
Anzahl Balkone: 4
Balkon/Terrassen - Fläche: 40
Beziehbar: April 26
WC: 3
Balkon
Neubau
Personenaufzug
Gas
Dusche
teilmöbliert
Zentralheizung
Massiv
Massivbauweise
Stein
Tiefgarage
Flachdach
Ähnliche Objekte
Wohnen in Top Lage! Helle Parterre-Wohnung m...
€ 88.000
2
Schlafzimmer
1
Badezimmer
50 m2
Größe
Februar 21, 2026

















