Erweiterte Suche
Suchagent aktivieren
Exklusive Anzeigen

Donau-Uni & IMC Nähe: 146m² Stilaltbau mit Fischgrätparkett & Flügeltüren

€ 1.649,00

Schillerstraße, ,

145.645 Zimmer
zu Favoriten hinzufügen
teilen
Suchergebnisse

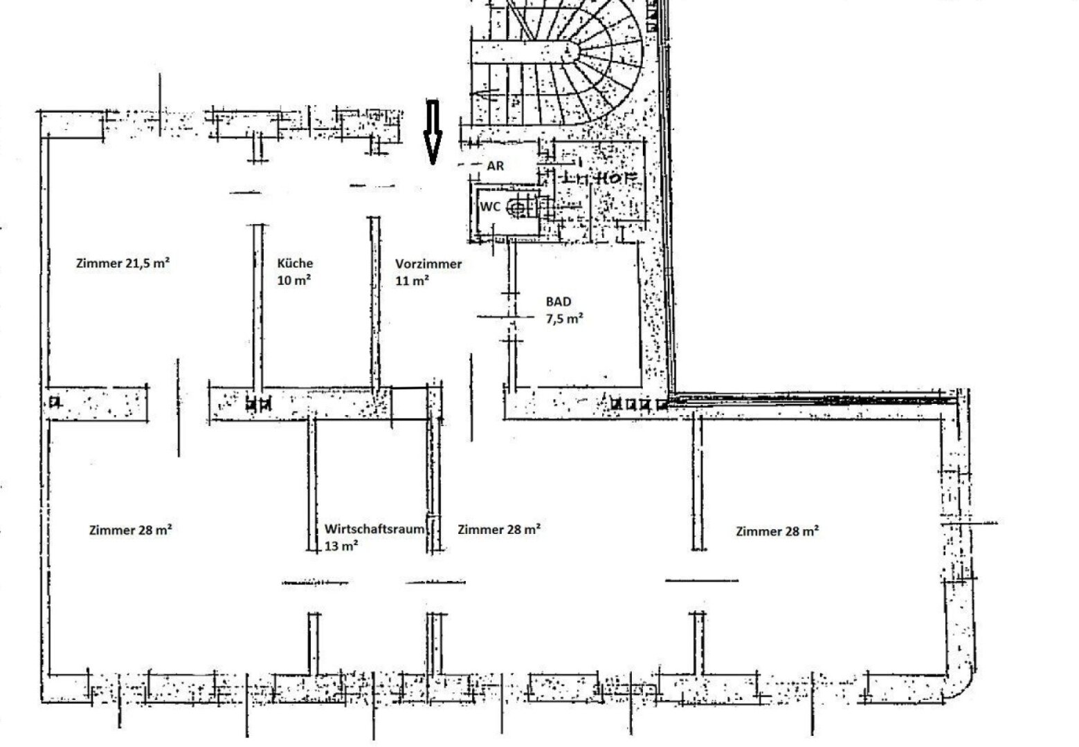
Objektbeschreibung

145,64 m² Wohnfläche  
1. Stock ohne Lift – Sofortbezug   

Raumaufteilung: Vorzimmer, 5 Zimmer, Küche, Tageslichtbadezimmer mit Dusche, Toilette, Abstellraum 

Ausstattung: Hohe Decken mit rund 3,10 Meter, Fischgrätparketten, Stilaltbau Flügeltüren, Kassettentüren und Zargen, Einbauküche

Miete gesamt: € 1.649,- inkl. BK/USt.

Kaution: 3 BMM 

Parksituation: Anwohner mit Hauptwohnsitz in der Zone können
Mehr lesen

Adresse: Schillerstraße
Bezirk:
Bundesland:
PLZ: 3500
Land: Österreich
Objekt ID: 2669967
Preis: € 1.649
Nutzfläche: 146 m2
Gesamtfläche: 0 m2
Ziimmer insgesamt: 5
Schlafzimmer: 5
Badezimmer: 1
Miete/m2 €: 7.78
Miete (netto) €: 1133.67
USt €: 149.91
Gesamtbelastung €: 1649
Nutzungsart: Gewerbe
Provisionspflichtig: nein
Kaution: 3 Bruttomonatsmieten
HWB: 181,80 kWh/(m²*a)
HWB Klasse: E
FGEE: 2.7
E-Ausweis Gültig Bis:: 06.08.2034
Energieausweis Art: Bedarf
Beziehbar: 01.05.2026
Max. Mietdauer: unbefristet
Etage: 1. Etage
WC: 1
Abstellräume: 1
Einbauküche
WG-geeignet
Altbau
Etagenheizung
Gas
Parkett
Bad mit Fenster
Kabel/Sat-TV
Abstellraum
Massiv
Massivbauweise
seniorengerecht
DVBT-Empfang

Ähnliche Objekte

vergleichen
Plan 4.8
PROVISIONSFREI

53qm MIETE – Balkonwohnung, Lift, Tief...

€ 1.250
2
Schlafzimmer
1
Badezimmer
53 m2
Größe
vergleichen
4HuCTXVvr0CTDlerg2LaS5
PROVISIONSFREI

ZENTRUM: Moderne 2-Zimmer-Wohnung in Krems m...

€ 800
2
Schlafzimmer
1
Badezimmer
60 m2
Größe
Mai 8, 2026
vergleichen
11nnqTRrcfEW7kztDxNwuc
PROVISIONSFREI

WG-ZIMMER in 3er-STUDENTEN-WG mit AUßENFLÄCH...

€ 400
1
Schlafzimmer
1
Badezimmer
12 m2
Größe

IMMOCENTRAL Immobilientreuhand GmbH
Marion Kleebinder

Kontaktaufnahme









    • Preisinformation
      Miete netto1.133,67 €
      Ust.149,91 €
      Gesamtbelastung1.649,00 €
      Objektpreis1.649,00 €

    Vergleichen