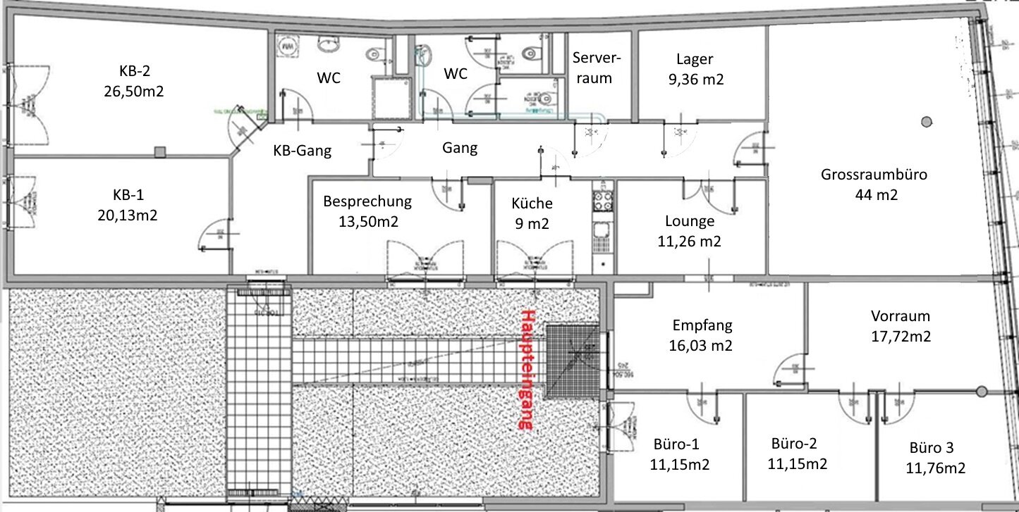
Objektbeschreibung
Die moderne Büroeinheit liegt in einem ansprechenden Bürogebäude im 1. Liftstock und bietet eine Nutzfläche von ca. 255 m². Die Lage direkt im Zentrum von Schwechat ermöglicht einen einfachen Zugang zu allen Annehmlichkeiten der Stadt und schafft eine besonders attraktive Arbeitsumgebung.
Ihre Vorteile auf einen Blick:
* 6 Büroräume
Mehr lesen
Objekt ID: 2677108
Nutzfläche: 0 m2
Gesamtfläche: 255 m2
Ziimmer insgesamt: 6
Schlafzimmer: 6
Badezimmer: 1
Miete/m2 €: 14.12
Miete (netto) €: 3600
USt €: 823.09
Nutzungsart: Gewerbe
Provisionspflichtig: ja
Kaution: 3 Bruttomonatsmieten
Beziehbar: sofort
Etage: 1. Etage
WC: 3
Abstellräume: 2
Neubau
Personenaufzug
Gäste-WC
Etagenheizung
Gas
Fliesen
Dusche
Rollläden
Klimaanlage
Räume veränderbar
Teeküche
Tiefgarage





