Objektbeschreibung
In der Canavesegasse 4, eingebettet in eine ruhige und beliebte Wohngegend des 23. Wiener Gemeindebezirks, entsteht mit CANAVESE ein hochwertiges Neubauprojekt der Chronos Wohnbau Gruppe. Die Lage verbindet angenehme Zurückgezogenheit mit sehr guter urbaner Anbindung und bietet eine Wohnqualität, die Ruhe, Grün und Infrastruktur in ausgewogener Weise vereint.
Atzgersdorf steht für gewachsene Strukturen,
Mehr lesen
Objekt ID: 2685127
Preis: € 642.000
Nutzfläche: 110 m2
Gesamtfläche: 126 m2
Ziimmer insgesamt: 4
Schlafzimmer: 4
Badezimmer: 1
Miete/m2 €: 5113.5
Nutzungsart: Anlage
HWB: 31 kWh/(m²*a)
HWB Klasse: B
FGEE: 0.75
E-Ausweis Gültig Bis:: 02.01.2036
Energieausweis Art: Bedarf
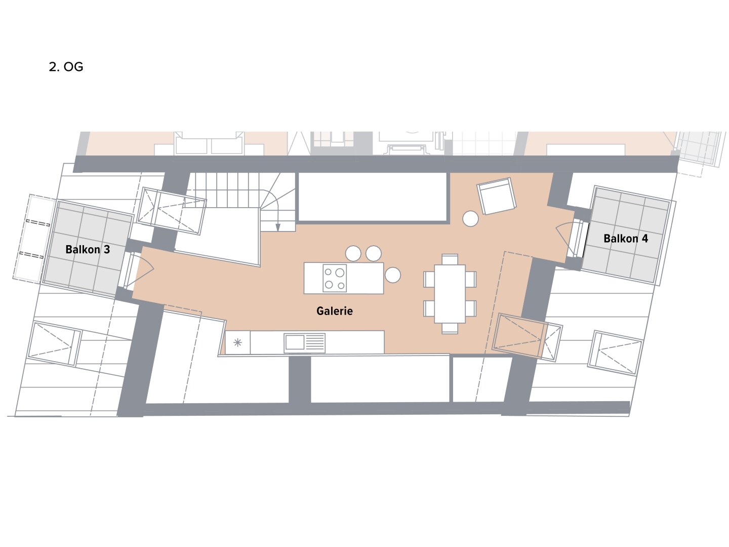
Anzahl Balkone: 4
Balkon/Terrassen - Fläche: 15
Beziehbar: Herbst 2027
Etage: 1. Etage / 1. OG + 2. OG
WC: 1
Balkon
barrierefrei
Neubau
Personenaufzug
Parkett
Dusche
Fußbodenheizung
Fahrradraum
Massiv
Massivbauweise
Tiefgarage
Ähnliche Objekte
DB IMMOBILIEN | Top sanierte 3,5 Zimmer Perl...
€ 739.000
3
Schlafzimmer
1
Badezimmer
97 m2
Größe
März 30, 2026
Exklusives zweigeschossiges Dachgeschoss-Pen...
€ 2.950.000
4
Schlafzimmer
2
Badezimmer
181 m2
Größe
März 30, 2026















