Erweiterte Suche
Andere Eigenschaften
Suchagent aktivieren
Exklusive Anzeigen

*** 885 m² Wohn- & Geschäftsfläche im Zentrum von Kindberg mit Entwicklungspotenzial! ***

€ 300.000,00

,

52438 Zimmer
zu Favoriten hinzufügen
teilen
Suchergebnisse

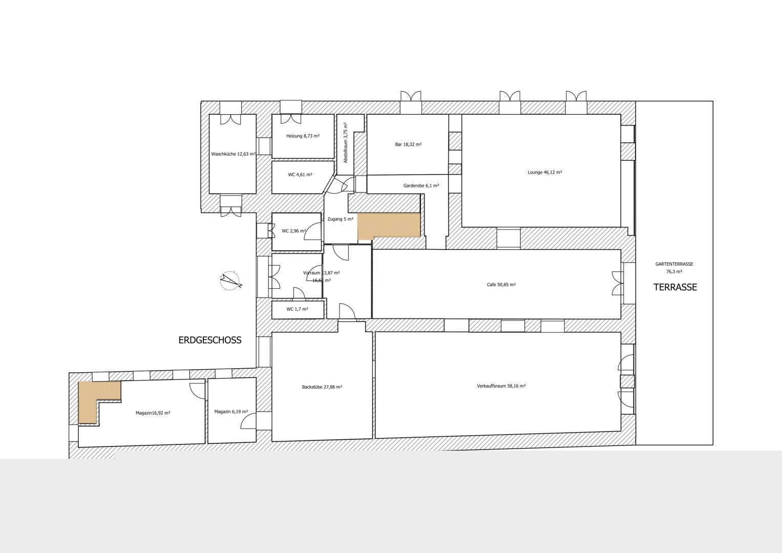
Objektbeschreibung

EIN OBJEKT. VIELE MÖGLICHKEITEN.

In bester Lage von Kindberg, direkt an der Hauptstraße 65+67, wartet dieses beeindruckende Investmentobjekt mit riesigem Potenzial auf seine nächste Erfolgsgeschichte. Auf 1.721 m² Grundstücksfläche vereint sich hier ein Wohn- und Geschäftshaus mit einer Gesamtnutzfläche von rund 885 m², die sich in 524 m² Wohnfläche und
Mehr lesen

Bezirk:
Bundesland:
PLZ: 8605
Land: Österreich
Objekt ID: 2698251
Preis: € 300.000
Nutzfläche: 524 m2
Gesamtfläche: 885 m2
Ziimmer insgesamt: 38
Schlafzimmer: 38
Badezimmer: 2
Nutzungsart: Anlage
Provisionspflichtig: ja
Provision: 3% des Kaufpreises zzgl. 20% USt.
HWB: 225 kWh/(m²*a)
HWB Klasse: F
FGEE: 1.95
E-Ausweis Gültig Bis:: 15.02.2036
Energieausweis Art: Bedarf
Anzahl Balkone: 2
Balkon/Terrassen - Fläche: 10
Beziehbar: sofort
WC: 8
Abstellräume: 6
Balkon
Einbauküche
WG-geeignet
Gäste-WC
Altbau
teilmöbliert
Zentralheizung
Abstellraum
Öl
Massiv
Massivbauweise
Wasch-/Trockenraum
Dielen
Gartennutzung
Gastterrasse
Pissoir
Räume veränderbar
Satteldach
Kantine / Cafeteria

Ähnliche Objekte

vergleichen
nsuaPRS234aGSFvealUGt
PROVISIONSFREI

** LETZTE EINHEIT VERFÜGBAR ** Neubau Doppel...

€ 320.400
5
Schlafzimmer
2
Badezimmer
115 m2
Größe
Dezember 4, 2025
vergleichen
2F4Vb90My2uryTaRCDaPR7
PROVISIONSFREI

** NEUER PREIS ** Wohnen mit Aussicht und Op...

€ 219.000
6
Schlafzimmer
2
Badezimmer
120 m2
Größe
Dezember 4, 2025
vergleichen
52erkEps79qKBJPfHLoPhF

Baubewilligtes Wohnprojekt in Toplage – 7 mo...

€ 242.000
520 m2
Größe
Dezember 4, 2025

Immo GH
Günter Harrer

Kontaktaufnahme









    • Preisinformation
      Objektpreis300.000,00 €

    Vergleichen