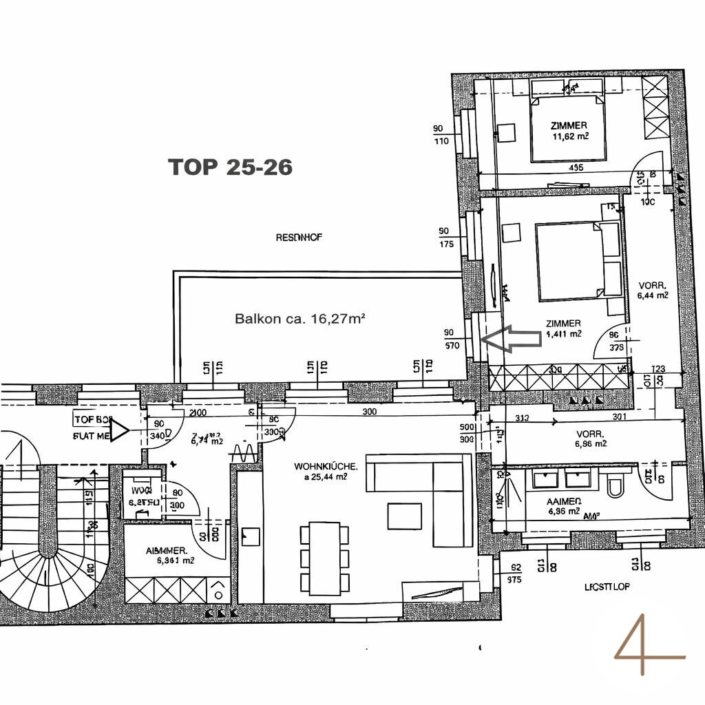
Objektbeschreibung
Eine charmante, hochwertig sanierte Altbauwohnung mit Lift überzeugt durch eine gelungene Kombination aus klassischem Altbauflair und modernem Wohnkomfort.
Die Wohnung zeichnet sich durch folgende Punkte aus:
*
einladendem Vorraum
*
modernes Badezimmer mit Dusche und WC
*
offenem Wohn-Ess-Küchenbereich
*
1 Schlafzimmer
Objekt ID: 2698848
Preis: € 540.000
Nutzfläche: 82 m2
Gesamtfläche: 0 m2
Ziimmer insgesamt: 0
Schlafzimmer: 0
Badezimmer: 0
Nutzungsart: Wohnen
Provisionspflichtig: ja
Provision: 3% des Kaufpreises zzgl. 20% USt.
HWB: 51,50 kWh/(m²*a)
HWB Klasse: C
E-Ausweis Gültig Bis:: 16.01.2034
Energieausweis Art: Bedarf
Balkon/Terrassen - Fläche: 16
Etage: EG
Altbau
Ähnliche Objekte
Anlegerhit oder Eigenheim | Sanierte 2-Zimme...
€ 299.000
2
Schlafzimmer
1
Badezimmer
60 m2
Größe
Mai 10, 2026
Hofseitige Gartenwohnung mit Terrasse I Grün...
€ 360.000
3
Schlafzimmer
1
Badezimmer
59 m2
Größe
Mai 10, 2026















