Objektbeschreibung
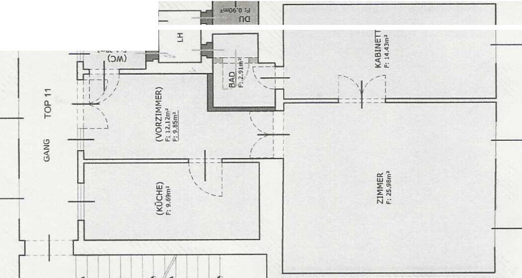
Diese sanierungsbedürftige 2,5 Zimmer Wohnung befindet sich im 3. Stock (Lift geplant) eines schön verzierten Gründerzeithauses aus der Jahrhundertwende. Die Wohnung besticht durch die ausgezeichneten Raumaufteilung, die erhaltenen Stilaltbau-Elemente sowie die hervorragende Infrastruktur (Franz-Josefs-Bahnhof). Zusätzlich bietet der Standort eine ausgezeichnete Verkehrs-Infrastruktur (Nahe U4, Franz-Josefs-Bahnhof).
Diese 2,5 Zimmer-Wohnung erstreckt sich auf ca.
Mehr lesen
Objekt ID: 2711162
Preis: € 310.000
Nutzfläche: 64 m2
Gesamtfläche: 64 m2
Ziimmer insgesamt: 2
Schlafzimmer: 2
Badezimmer: 1
Nutzungsart: Wohnen
Provisionspflichtig: ja
Provision: 3% des Kaufpreises zzgl. 20% USt.
HWB: 127,10 kWh/(m²*a)
HWB Klasse: D
FGEE: 2.35
E-Ausweis Gültig Bis:: 12.12.2033
Energieausweis Art: Bedarf
Beziehbar: nach Vereinbarung
Etage: 3. Etage
WC: 1
Abstellräume: 1
Einbauküche
Altbau
Etagenheizung
Gas
Parkett
Fahrradraum
vollerschlossen
Ähnliche Objekte
Anlegerhit oder Eigenheim | Sanierte 2-Zimme...
€ 299.000
2
Schlafzimmer
1
Badezimmer
60 m2
Größe
Mai 10, 2026
Hofseitige Gartenwohnung mit Terrasse I Grün...
€ 360.000
3
Schlafzimmer
1
Badezimmer
59 m2
Größe
Mai 10, 2026
















