Erweiterte Suche
Suchagent aktivieren
Exklusive Anzeigen

FRÜHLINGSAKTION BIS 30.04.2026 – PREISE REDUZIERT – MAJA LIVING – INVEST IN THE FUTURE! U-BAHN VOR DER TÜRE!

€ 507.900,00

,

148.844 Zimmer
zu Favoriten hinzufügen
teilen
Suchergebnisse

Objektbeschreibung

In unmittelbarer Nähe des Hauptbahnhofes und nur eine Minute von der U1-Station Keplerplatz entfernt, gelangen exklusive und stylisch konzipierte Erstbezugswohnungen zum Verkauf.

MAJA setzt auf eine moderne und effiziente Raumgestaltung, ohne dabei Kompromisse bei der gehobenen Qualität einzugehen. Jede Wohneinheit verfügt über eine eigene Freifläche, zudem stehen ein Fahrradraum sowie
Mehr lesen

Ort:
Bezirk:
Bundesland:
PLZ: 1100
Land: Österreich
Objekt ID: 2714519
Preis: € 507.900
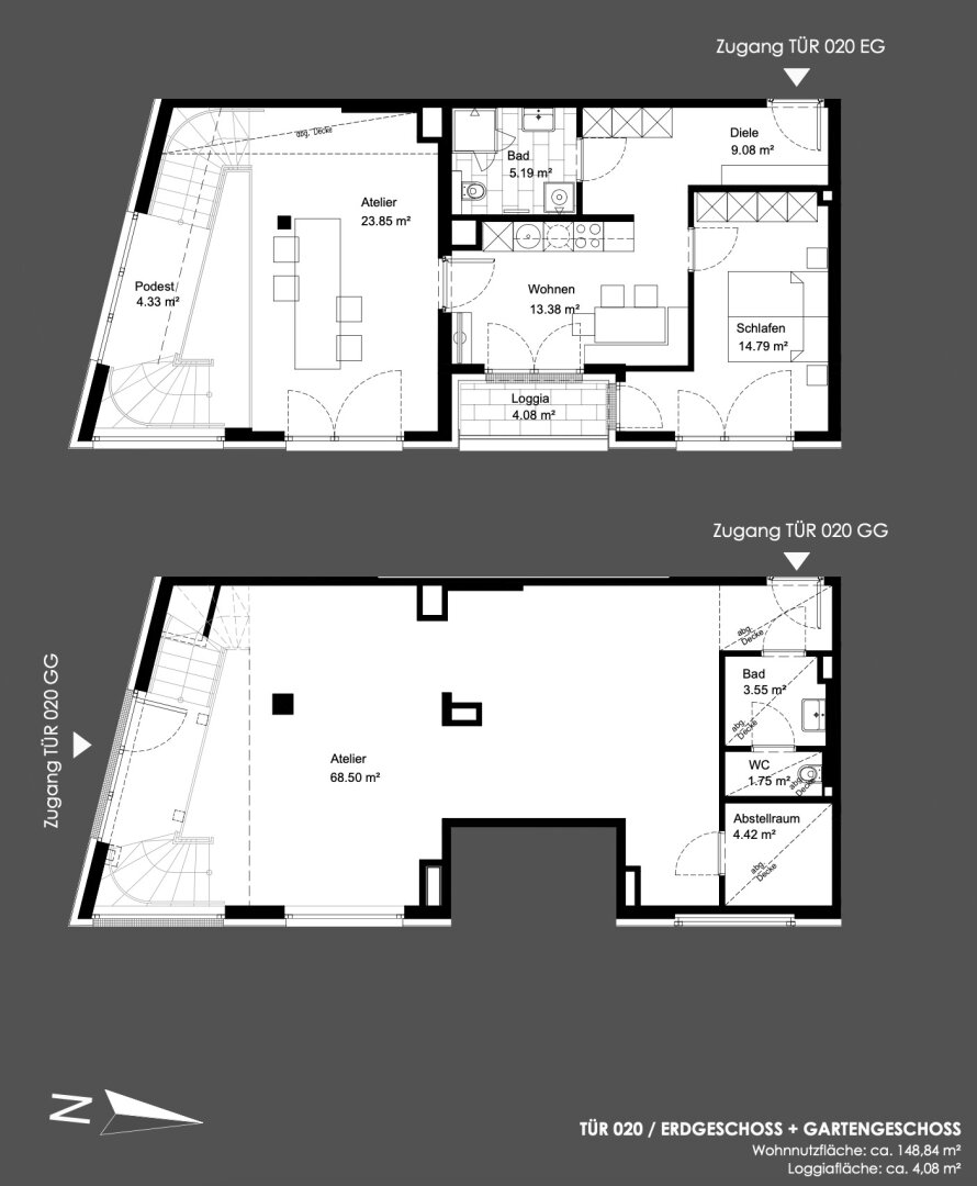
Nutzfläche: 149 m2
Gesamtfläche: 153 m2
Ziimmer insgesamt: 4
Schlafzimmer: 4
Badezimmer: 2
Nutzungsart: Wohnen
Provisionspflichtig: ja
Provision: 3% des Kaufpreises zzgl. 20% USt.
HWB: 21,60 kWh/(m²*a)
HWB Klasse: B
FGEE: 0.75
E-Ausweis Gültig Bis:: 24.01.2034
Energieausweis Art: Bedarf
Balkon/Terrassen - Fläche: 4
Beziehbar: sofort
Etage: EG / Erdgeschoss
WC: 2
Abstellräume: 1
barrierefrei
Neubau
WG-geeignet
Personenaufzug
Dusche
Fußbodenheizung
Kabel/Sat-TV
offene Küche
Abstellraum
Offene Küche
Rollläden
rollstuhlgerecht
Estrich
Fernwärme
schlüsselfertig mit Keller
seniorengerecht
Räume veränderbar

Ähnliche Objekte

vergleichen
Bestandsfreies Zinshaus, 1170 Wien

Leeres Zinshaus (700m² Bestandsfläche) mit b...

€ 1.600.000
700 m2
Größe
April 14, 2026
vergleichen
1y6rvfNupbsvtOCskadR04

FRÜHLINGSAKTION BIS 30.04.2026 – PREIS...

€ 507.900
4
Schlafzimmer
2
Badezimmer
149 m2
Größe
April 14, 2026

Vergleichen