Objektbeschreibung
NEUJAHRSAKTION BIS 31.01.2026 – PREISE REDUZIERT – MAJA LIVING – INVEST IN THE FUTURE! U-BAHN VOR DER TÜRE!
In unmittelbarer Nähe des Hauptbahnhofes und nur eine Minute von der U1-Station Keplerplatz entfernt, gelangen exklusive und stylisch konzipierte Erstbezugswohnungen zum Verkauf.
MAJA setzt auf eine moderne und effiziente Raumgestaltung, ohne dabei
Mehr lesen
Objekt ID: 2714537
Preis: € 507.900
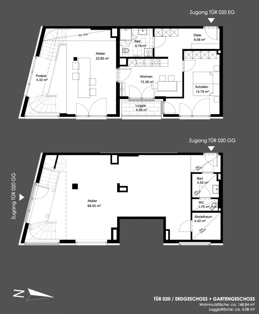
Nutzfläche: 149 m2
Gesamtfläche: 153 m2
Ziimmer insgesamt: 4
Schlafzimmer: 4
Badezimmer: 2
Nutzungsart: Wohnen
Provisionspflichtig: ja
Provision: 3% des Kaufpreises zzgl. 20% USt.
HWB: 21,60 kWh/(m²*a)
HWB Klasse: B
FGEE: 0.75
E-Ausweis Gültig Bis:: 24.01.2034
Energieausweis Art: Bedarf
Balkon/Terrassen - Fläche: 4
Beziehbar: sofort
Etage: EG / Erdgeschoss
WC: 2
Abstellräume: 1
barrierefrei
Neubau
WG-geeignet
Personenaufzug
Dusche
Fußbodenheizung
Kabel/Sat-TV
offene Küche
Abstellraum
Offene Küche
Rollläden
rollstuhlgerecht
Estrich
Fernwärme
schlüsselfertig mit Keller
seniorengerecht
Räume veränderbar




