Objektbeschreibung
In unmittelbarer Nähe des Hauptbahnhofes und nur eine Minute von der U1-Station Keplerplatz entfernt, gelangen exklusive und stylisch konzipierte Erstbezugswohnungen zum Verkauf.
MAJA setzt auf eine moderne und effiziente Raumgestaltung, ohne dabei Kompromisse bei der gehobenen Qualität einzugehen. Jede Wohneinheit verfügt über eine eigene Freifläche, zudem stehen ein Fahrradraum sowie
Mehr lesen
Objekt ID: 2714573
Preis: € 549.000
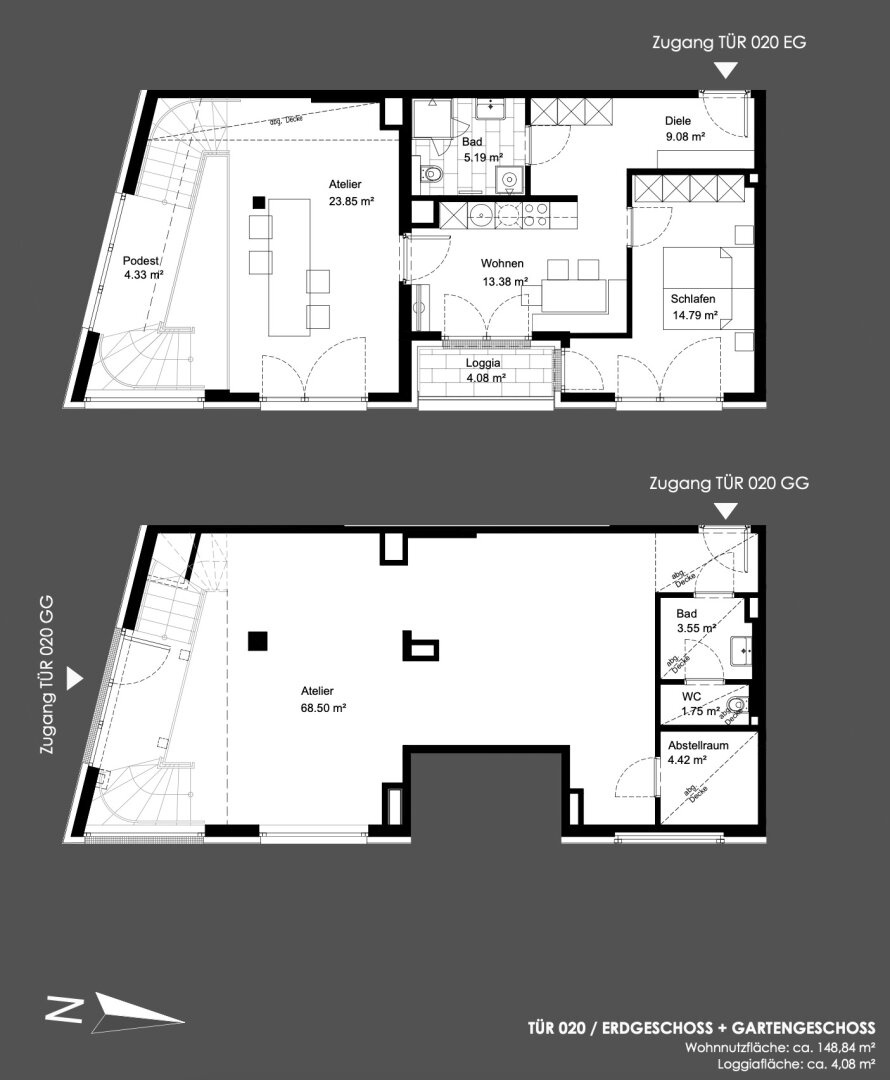
Nutzfläche: 149 m2
Gesamtfläche: 153 m2
Ziimmer insgesamt: 4
Schlafzimmer: 4
Badezimmer: 2
Nutzungsart: Wohnen
Provisionspflichtig: ja
Provision: 3% des Kaufpreises zzgl. 20% USt.
HWB: 21,60 kWh/(m²*a)
HWB Klasse: B
FGEE: 0.75
E-Ausweis Gültig Bis:: 24.01.2034
Energieausweis Art: Bedarf
Balkon/Terrassen - Fläche: 4
Beziehbar: sofort
Etage: EG / Erdgeschoss
WC: 2
Abstellräume: 1
barrierefrei
Neubau
WG-geeignet
Personenaufzug
Dusche
Fußbodenheizung
Kabel/Sat-TV
offene Küche
Abstellraum
Offene Küche
Rollläden
rollstuhlgerecht
Estrich
Fernwärme
schlüsselfertig mit Keller
seniorengerecht
Räume veränderbar


















