Objektbeschreibung
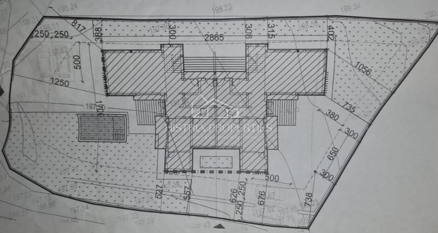
In einem malerischen und bekannten istrischen Dorf befindet sich dieses Baugrundstück mit gültiger Baugenehmigung und bezahltem Strom- und Wasseranschluss. Es ist für den Bau von zwei geräumigen, modernen Häusern vorgesehen.
Beide Häuser haben eine Gesamtfläche von 206,84 m² und erstrecken sich über zwei Etagen.
Im Erdgeschoss befinden sich ein
Mehr lesen
Objekt ID: 2742402
Preis: € 299.000
Nutzfläche: 0 m2
Gesamtfläche: 0 m2
Ziimmer insgesamt: 0
Schlafzimmer: 0
Badezimmer: 0
Nutzungsart: Anlage
Provisionspflichtig: ja












