Objektbeschreibung
Baugrundstück in Njivice, Insel Krk.
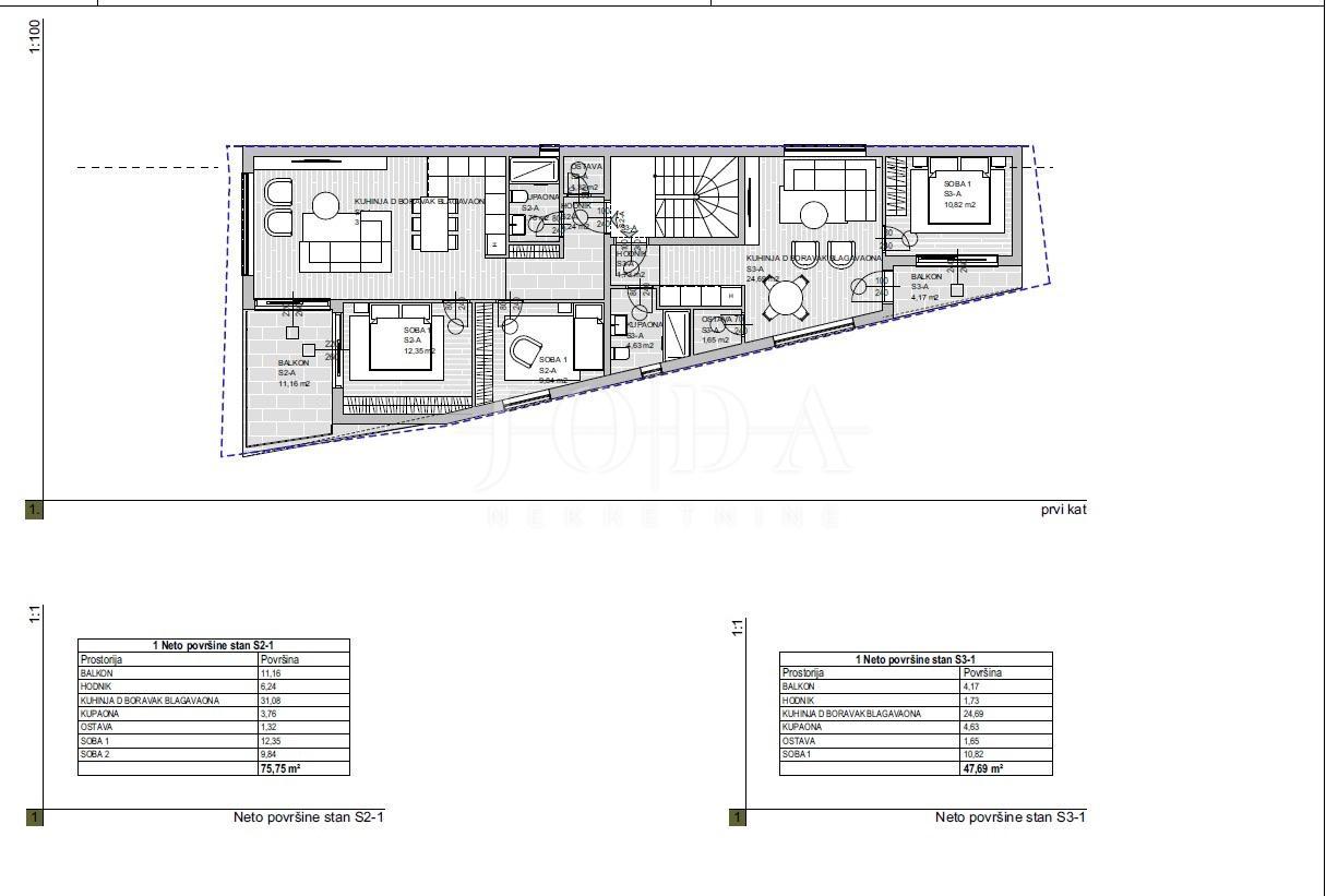
Das Grundstück wird mit vollständiger Projektdokumentation für den Bau eines Wohnhauses mit vier Wohneinheiten (Erdgeschoss und zwei Obergeschosse) und Dachterrasse verkauft. Die Baugenehmigung wurde beantragt. Die Infrastruktur (Strom, Wasser, Internet) ist nur 20 m vom Grundstück entfernt. Die Lage ist traumhaft, ca. 500 m vom
Mehr lesen
Objekt ID: 2745274
Preis: € 295.000
Nutzfläche: 0 m2
Gesamtfläche: 0 m2
Ziimmer insgesamt: 0
Schlafzimmer: 0
Badezimmer: 0
Nutzungsart: Anlage
Provisionspflichtig: ja









