Objektbeschreibung
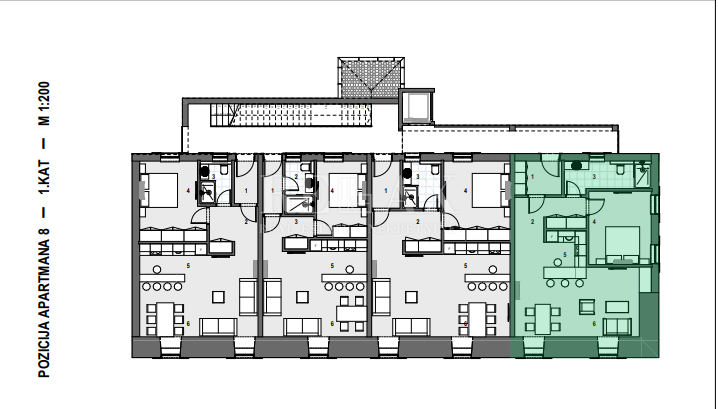
Wir verkaufen eine Wohnung 1. Reihe zum Meer in bester Lage in Volosko, Opatija.
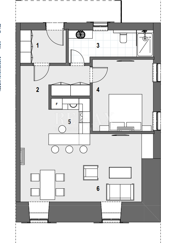
Diese schöne Wohnung besteht aus einer Eingangshalle, einem Badezimmer, einem Schlafzimmer, einer offenen Küche mit Esszimmer und einem Wohnzimmer.
Die Wohnung ist komplett möbliert und ausgestattet und wird so verkauft wie sie ist.
Der Stellplatz befindet
Mehr lesen
Objekt ID: 2750959
Preis: € 530.000
Nutzfläche: 0 m2
Gesamtfläche: 0 m2
Ziimmer insgesamt: 2
Schlafzimmer: 2
Badezimmer: 0
Nutzungsart: Wohnen
Provisionspflichtig: ja
WC: 1


















