Objektbeschreibung
PAG, POVLJANA – Wohnung mit Meerblick im Bau (S3)
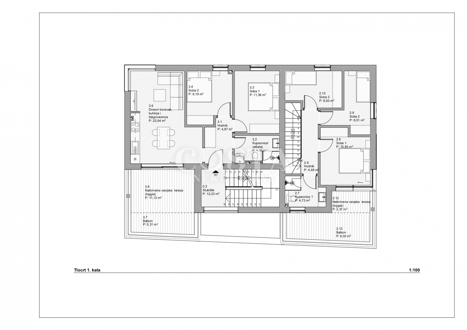
Diese im Bau befindliche Wohnung in Povljana auf der Insel Pag steht zum Verkauf. Die 53,32 m² große Wohnung befindet sich im ersten Stock eines kleinen Wohnhauses mit fünf Wohneinheiten. Sie besteht aus einem Wohnzimmer, einer Wohnküche, zwei Schlafzimmern und einem
Mehr lesen
Objekt ID: 2752411
Preis: € 233.940
Nutzfläche: 0 m2
Gesamtfläche: 0 m2
Ziimmer insgesamt: 3
Schlafzimmer: 3
Badezimmer: 1
Nutzungsart: Wohnen
Provisionspflichtig: ja











