Objektbeschreibung
PAG, POVLJANA – Wohnung mit Garten im Bau (S1)
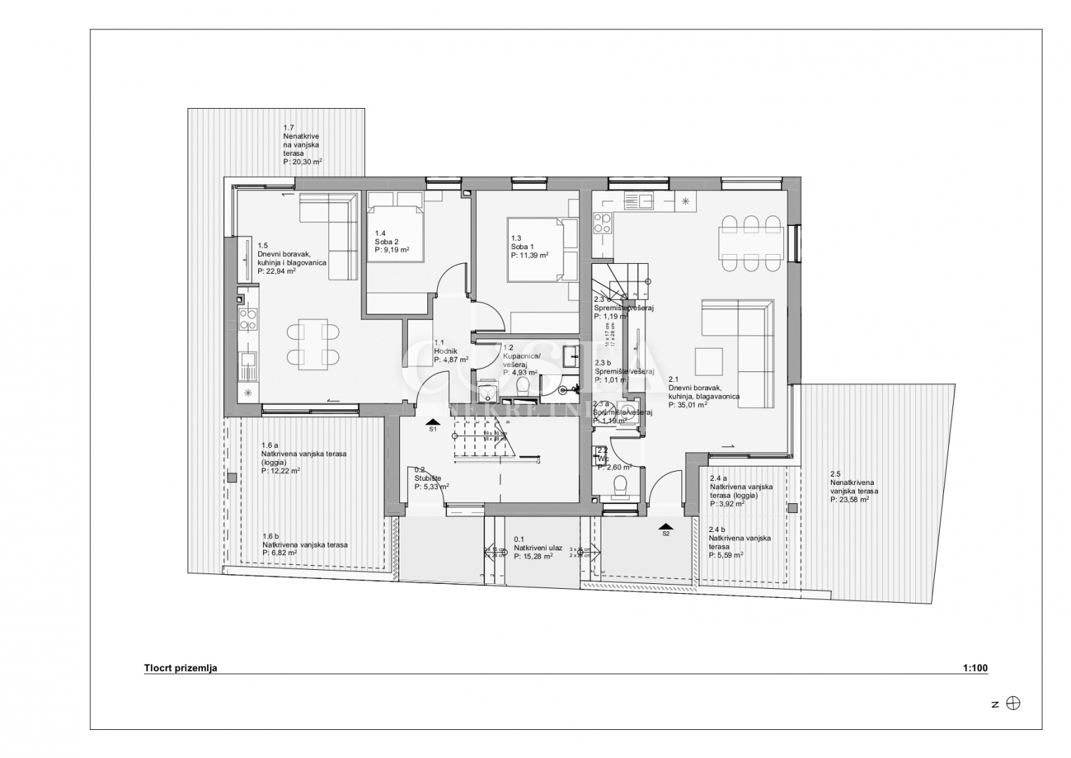
Diese im Bau befindliche Wohnung mit Garten in Povljana auf der Insel Pag steht zum Verkauf. Die 53,32 m² große Wohnung befindet sich im Erdgeschoss eines kleinen Wohnhauses mit fünf Wohneinheiten. Sie besteht aus einem Wohnzimmer, einer Wohnküche, zwei Schlafzimmern und
Mehr lesen
Objekt ID: 2752429
Preis: € 290.150
Nutzfläche: 0 m2
Gesamtfläche: 0 m2
Ziimmer insgesamt: 3
Schlafzimmer: 3
Badezimmer: 1
Nutzungsart: Wohnen
Provisionspflichtig: ja










