Objektbeschreibung
VODICE – Luxuriöses Haus auf zwei Ebenen S2 mit Pool und Panoramaterrassen – Teil eines modernen Triplex-Projekts
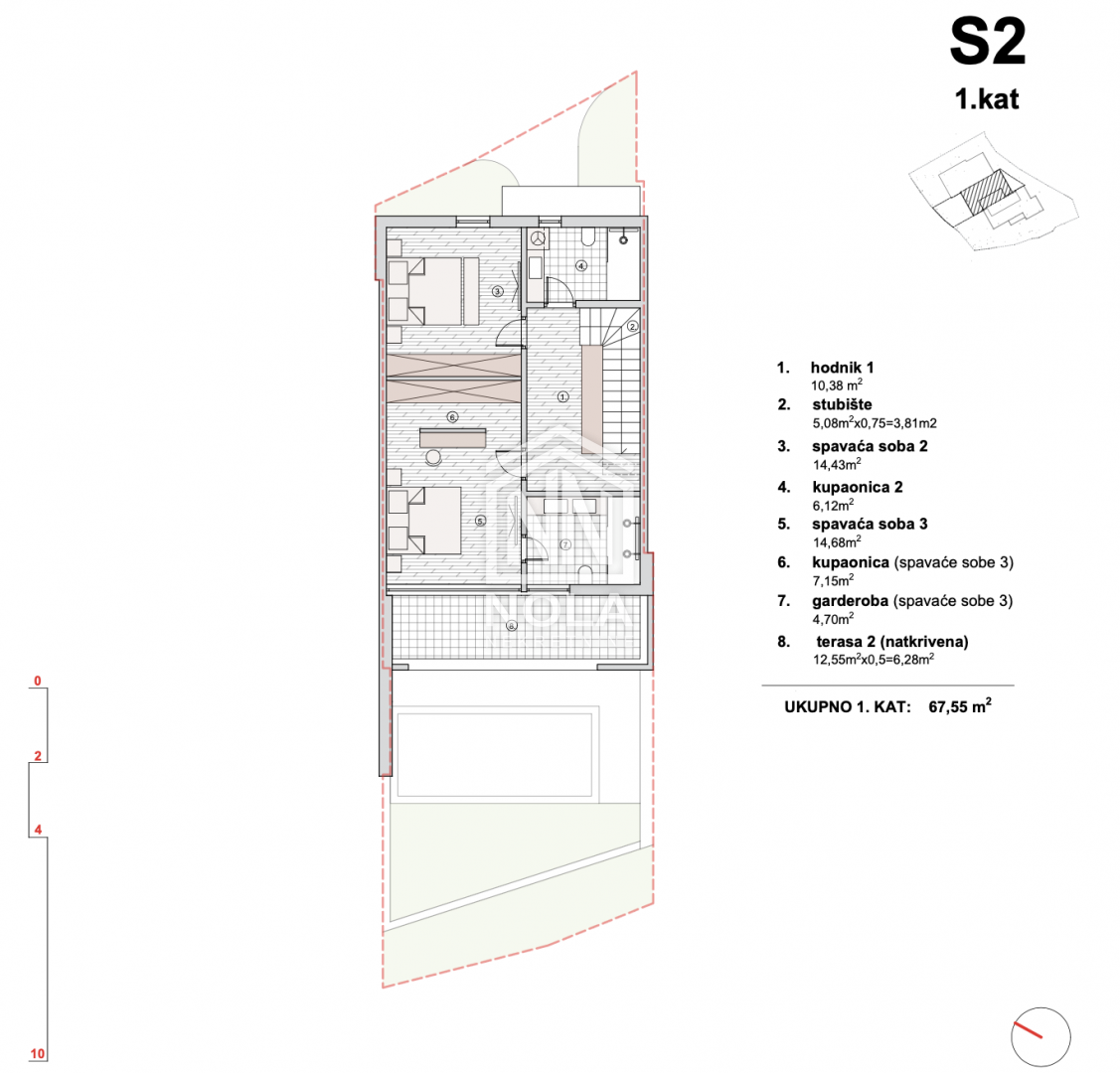
In ruhiger und attraktiver Lage in Vodice befindet sich das Haus S2, das Teil eines hochwertig geplanten Triplex-Projekts ist. Die Immobilie verbindet moderne Architektur, funktionale Raumaufteilung und hohen Wohnkomfort. Sie eignet sich ideal
Mehr lesen
Objekt ID: 2753820
Preis: € 739.750
Nutzfläche: 0 m2
Gesamtfläche: 0 m2
Ziimmer insgesamt: 4
Schlafzimmer: 4
Badezimmer: 2
Nutzungsart: Wohnen
Provisionspflichtig: ja
WC: 2










