Objektbeschreibung
Wunderschöne 2 Zimmerwohnung mit Balkon in Eggenberg! ab März!
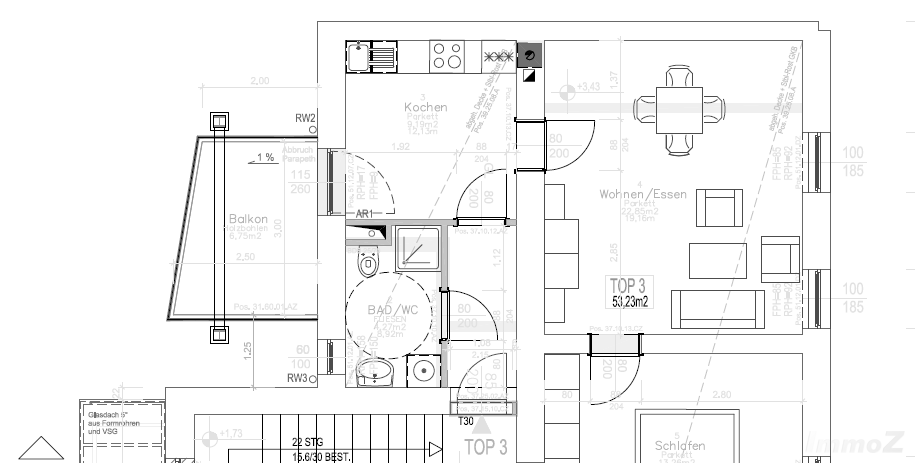
Im ersten Stock eines Wohnhauses ist diese Wohnung ab März zur Miete verfügbar.
Die Wohnung zeichnet sich durch eine durchdachte Aufteilung aus: Helle Küche inkl. Geschirrspüler mit Essbereich von der man direkt auf den Balkon gelangt, welcher innenhofseitig liegt.
Die
Mehr lesen
Objekt ID: 2754305
Preis: € 706.44 pro Monat
Nutzfläche: 53 m2
Gesamtfläche: 0 m2
Ziimmer insgesamt: 2
Schlafzimmer: 2
Badezimmer: 0
Miete (netto) €: 435
USt €: 65.13
Gesamtbelastung €: 706.44
Nutzungsart: Wohnen
Kaution: Überweisung
HWB: 93 kWh/(m²*a)
HWB Klasse: C
Energieausweis Art: Bedarf
Anzahl Balkone: 1
Beziehbar: 01.03.2026
Balkon
Einbauküche
WG-geeignet
Altbau
Parkett
Bad mit Fenster
Kabel/Sat-TV
Fernheizung
Fernwärme
Keller
Fernblick
teilerschlossen
















