Erweiterte Suche
Suchagent aktivieren
Exklusive Anzeigen

Top frequentierte Lage für Investoren wäre dieses Ideal für ein Top-Restaurant zu entwickeln

€ 240.000,00pro Monat

,

2106 Zimmer
zu Favoriten hinzufügen
teilen
Suchergebnisse

Objektbeschreibung

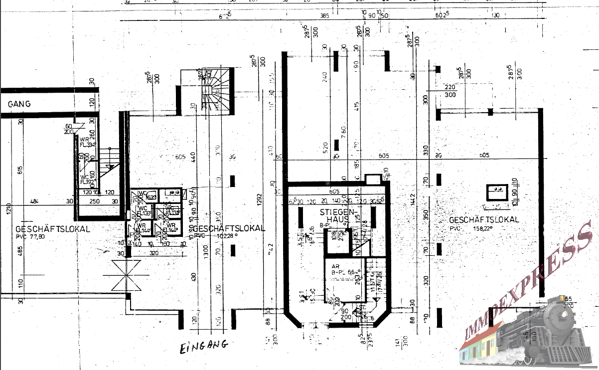
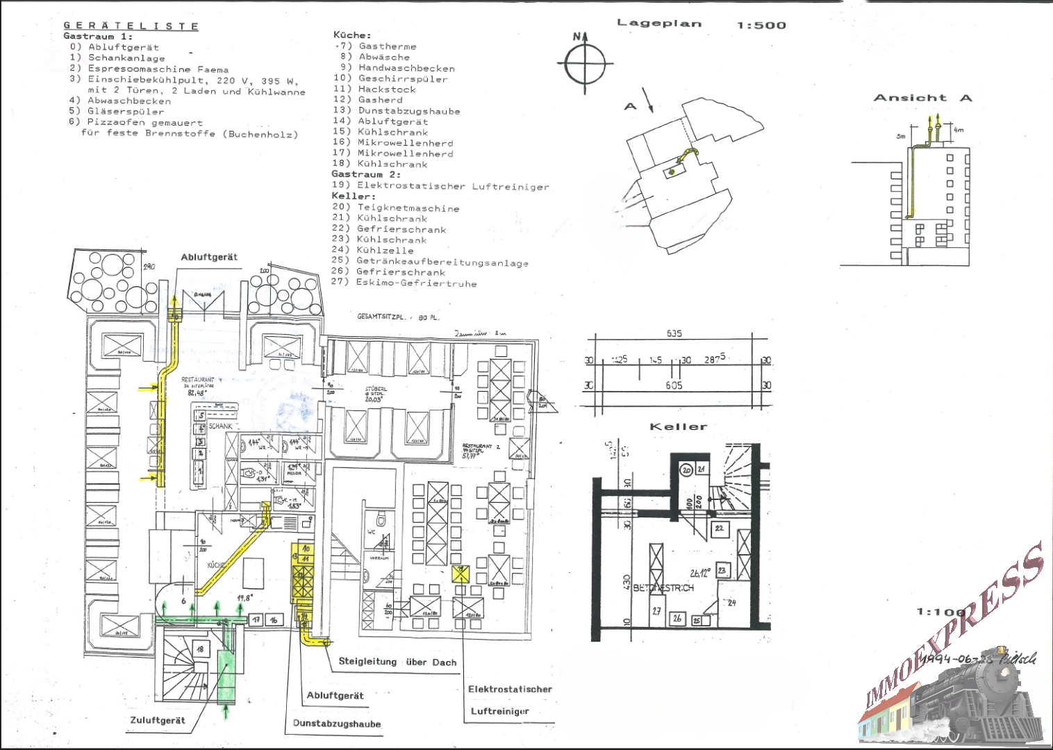
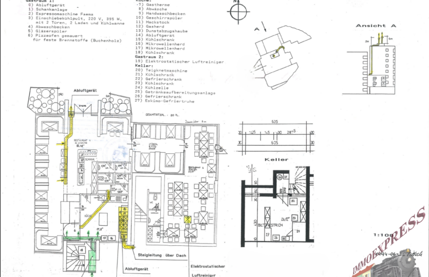
Zum Verkauf steht ein Gastronomielokal an einem traditionsreichen Standort in Wiener Neustadt  steht seit Jahrzehnten für Gastronomie – ein Faktor, der gerade in dieser Branche ein großer Vorteil ist: Gäste verbinden den Ort bereits mit einem gastronomischen Erlebnis und die Lage besitzt eine gewachsene Bekanntheit.
Historische Aufnahmen belegen, dass das Lokal bereits
Mehr lesen

Bezirk:
Bundesland:
PLZ: 2700
Land: Österreich
Objekt ID: 2755596
Preis: € 240.000 pro Monat
Nutzfläche: 210 m2
Gesamtfläche: 0 m2
Ziimmer insgesamt: 6
Schlafzimmer: 6
Badezimmer: 1
Nutzungsart: Anlage
Provision: 3 % zzgl. 20% MwSt. vom Gesamtkaufpreis
HWB: 150 kWh/(m²*a)
HWB Klasse: D
FGEE: 2.66
Beziehbar: ab sofort
barrierefrei
Neubau
Einbauküche
Etagenheizung
Gas
Bad mit Fenster
Kabel/Sat-TV
teilmöbliert
Abstellraum
vollerschlossen
Stein
Keller
Fernblick

Immoexpress KG
Rita Horvath

Kontaktaufnahme









    • Preisinformation
      Objektpreis240.000,00 €

    Vergleichen