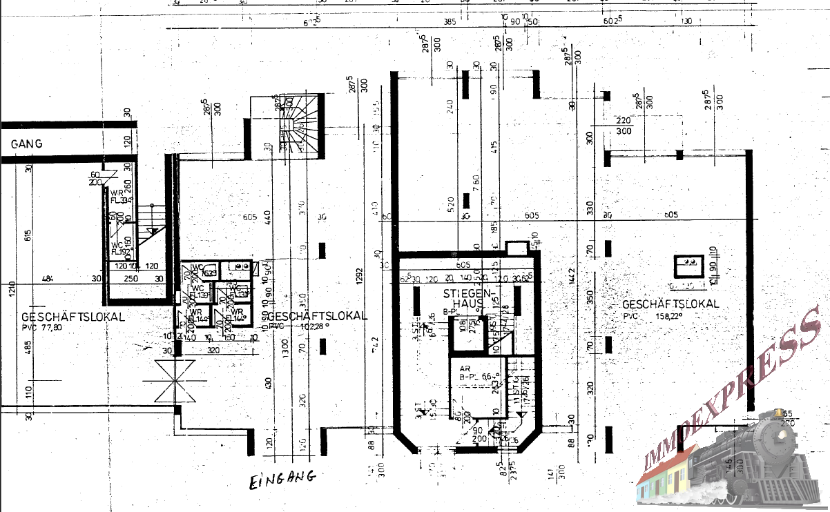
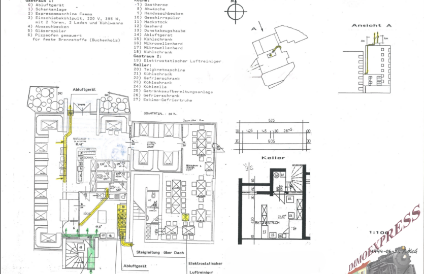
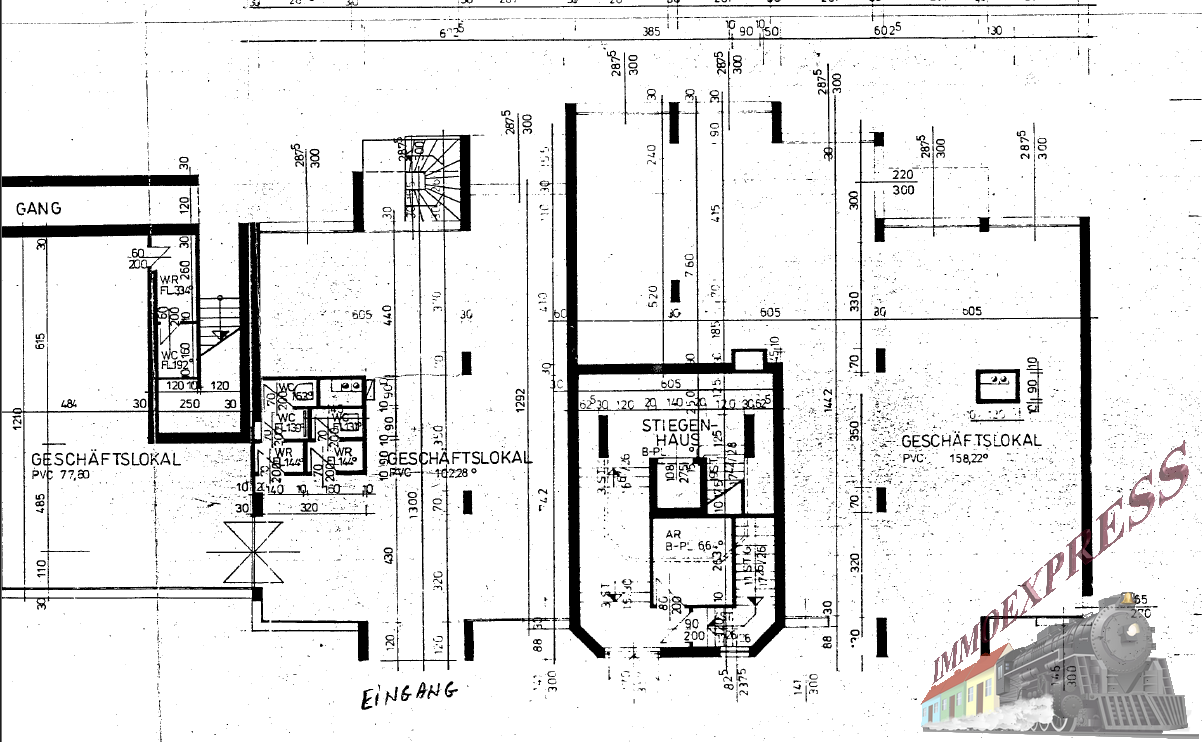
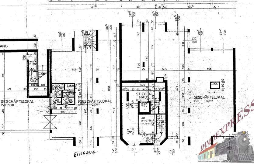
Objektbeschreibung
Zur Vermietung steht ein Gastronomielokal an einem traditionsreichen Standort in Wiener Neustadt steht seit Jahrzehnten für Gastronomie – ein Faktor, der gerade in dieser Branche ein großer Vorteil ist: Gäste verbinden den Ort bereits mit einem gastronomischen Erlebnis und die Lage besitzt eine gewachsene Bekanntheit.
Historische Aufnahmen belegen, dass
Mehr lesen
Objekt ID: 2755611
Preis: € 2.900 pro Monat
Nutzfläche: 0 m2
Gesamtfläche: 0 m2
Ziimmer insgesamt: 6
Schlafzimmer: 6
Badezimmer: 1
Miete (netto) €: 1626.67
USt €: 483.33
Gesamtbelastung €: 2900
Nutzungsart: Anlage
Kaution: Überweisung
HWB: 150 kWh/(m²*a)
HWB Klasse: D
FGEE: 2.66
Beziehbar: ab sofort
barrierefrei
Neubau
Einbauküche
Etagenheizung
Gas
Kabel/Sat-TV
teilmöbliert
vollerschlossen
Stein
Pissoir
Fernblick
















