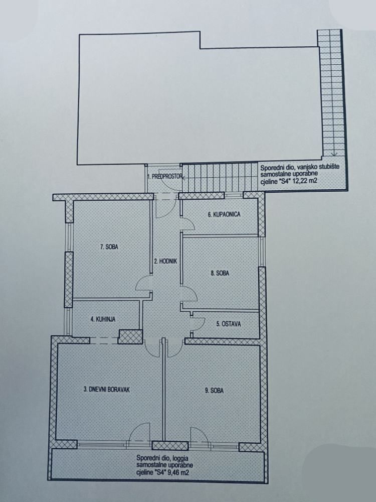
Objektbeschreibung
Eine funktionale und vollständig möblierte 3-Zimmer-Wohnung in ausgezeichneter Lage in – ideal für junge Familien, die in der Nähe aller Einrichtungen wohnen möchten: Schule, Kindergarten, Geschäfte, öffentliche Verkehrsmittel und das Meer sind in wenigen Gehminuten erreichbar.
Grundinformationen
82 m² Wohnfläche (105 m² netto)
3 Schlafzimmer
Obergeschoss (letzte Etage)
Mehr lesen
Objekt ID: 2762407
Preis: € 250.000
Nutzfläche: 0 m2
Gesamtfläche: 0 m2
Ziimmer insgesamt: 4
Schlafzimmer: 4
Badezimmer: 1
Nutzungsart: Wohnen
Provisionspflichtig: ja












