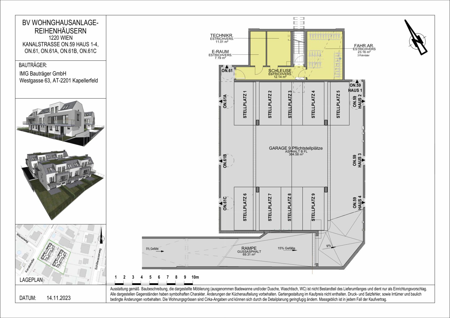
Objektbeschreibung
Willkommen in Ihrem neuen Zuhause in 1220 Wien!
Diese atemberaubende Immobilie besticht nicht nur durch ihre moderne Architektur und hochwertige Ausstattung, sondern auch durch ihre erstklassige Lage in einem der begehrtesten Stadtteile Wiens. Der Erstbezug dieser Immobilie garantiert Ihnen ein unvergleichliches Wohngefühl und die Möglichkeit, Ihre persönlichen Vorstellungen und Wünsche
Mehr lesen
Dokumente
Objekt ID: 2792890
Preis: € 799.900
Nutzfläche: 120 m2
Gesamtfläche: 154 m2
Ziimmer insgesamt: 5
Schlafzimmer: 5
Badezimmer: 2
Miete/m2 €: 5194.16
Nutzungsart: Anlage
Provisionspflichtig: nein
Provision: Provision bezahlt der Abgeber.
HWB: 33,30 kWh/(m²*a)
HWB Klasse: A
FGEE: 0.63
E-Ausweis Gültig Bis:: 26.02.2033
Energieausweis Art: Bedarf
Anzahl Balkone: 2
Balkon/Terrassen - Fläche: 30
Beziehbar: Q2-2027
WC: 3
Balkon
Neubau
Gäste-WC
Parkett
Bad mit Fenster
Fußbodenheizung
Fahrradraum
offene Küche
Abstellraum
Offene Küche
Rollläden
Klimaanlage
Luft-Wärmepumpe
Massiv
Massivbauweise
vollerschlossen
schlüsselfertig mit Keller
Tiefgarage
Flachdach
Niedrigenergiehaus
Satteldach
Ähnliche Objekte
SCHLÜSSELFERTIGES ECKREIHENHAUS – 136 ...
€ 549.000
5
Schlafzimmer
3
Badezimmer
100 m2
Größe
Februar 27, 2026
SCHLÜSSELFERTIGES REIHENHAUS MIT WOHNKELLER ...
€ 545.000
5
Schlafzimmer
3
Badezimmer
100 m2
Größe
Februar 27, 2026













