Objektbeschreibung
WOHNEN ZWISCHEN HIMMEL UND WEINBERGEN
Im Herzen von Oberlaa, wo ländliche Idylle auf modernen Stadtkomfort trifft, öffnet sich im zweiten Stock einer exklusiven Wohnhausanlage die Tür zu Ihrem neuen Rückzugsort. Diese Wohnung ist weit mehr als nur ein Zuhause – sie ist ein Statement für Lebensqualität. Dank der Süd-Ausrichtung und
Mehr lesen
Objekt ID: 2793186
Preis: € 640.000
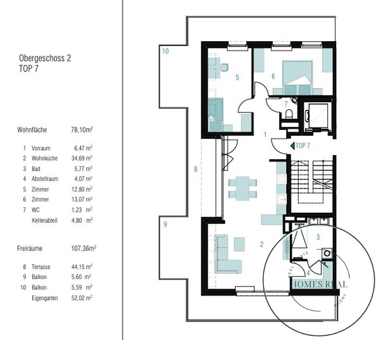
Nutzfläche: 78 m2
Gesamtfläche: 0 m2
Ziimmer insgesamt: 3
Schlafzimmer: 3
Badezimmer: 1
Nutzungsart: Wohnen
Provisionspflichtig: ja
Provision: 3% des Kaufpreises zzgl. 20% USt.
HWB: 30,60 kWh/(m²*a)
HWB Klasse: B
FGEE: 0.66
E-Ausweis Gültig Bis:: 11.04.2031
Energieausweis Art: Bedarf
Balkon/Terrassen - Fläche: 55
Etage: 2. Etage
WC: 1
Abstellräume: 1
Neubau
Einbauküche
Personenaufzug
Dusche
Fußbodenheizung
Klimaanlage
Luft-Wärmepumpe









