Objektbeschreibung
Willkommen in Ihrem neuen produktiven Workspace – sofort starklar für Sie und Ihr Team.
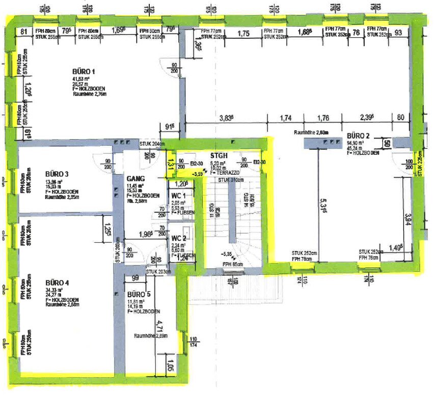
Diese großzügige Bürofläche in der 1. Etage bietet Ihnen eine beeindruckende Fläche von 212,49 m², die sich perfekt für unterschiedlichste Nutzungsmöglichkeiten eignet.
Sie profitieren von einer zentralen Lage, die sich durch eine exzellente Verkehrsanbindungen auszeichnet. Die
Mehr lesen
Objekt ID: 2807570
Nutzfläche: 0 m2
Gesamtfläche: 212 m2
Ziimmer insgesamt: 0
Schlafzimmer: 0
Badezimmer: 0
Miete/m2 €: 7.5
Miete (netto) €: 1593.68
USt €: 393.51
Nutzungsart: Gewerbe
Provisionspflichtig: ja
Kaution: 8.035,00 €
HWB: 133 kWh/(m²*a)
Energieausweis Art: Bedarf
Beziehbar: Sofort
Max. Mietdauer: unbefristet
Etage: 1. Etage
Teeküche













