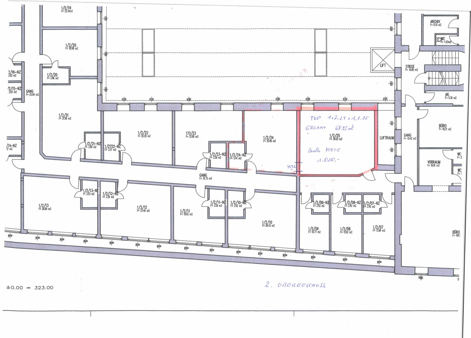
Objektbeschreibung
Diese charmante Büro- oder Praxisfläche in der 2. Etage eines historischen Fabrikgebäudes.
Das Büro überzeugt durch eine geräumige Zimmeraufteilung und ein freundliches Ambiente, also ideale Voraussetzungen um Kunden zu empfangen.
Die Heiz-und Stromkosten werden vom Vermieter bzw. der Hausverwaltung vorgeschrieben und abgerechnet. Es sind ausreichend Parkplätze für Sie und Ihre
Mehr lesen
Adresse: Leonfeldner Straße 328
Ort: Linz
Bezirk: 4040
Bundesland: Oberösterreich
PLZ: 4040
Land: Österreich
Objekt ID: 2808928
Nutzfläche: 0 m2
Gesamtfläche: 69 m2
Ziimmer insgesamt: 2
Schlafzimmer: 2
Badezimmer: 0
Miete (netto) €: 850
Betriebskosten €: 213.68
USt €: 170
Nutzungsart: Gewerbe
Provisionspflichtig: ja
Kaution: 3 Bruttomonatsmieten
Etage: 2. Etage








