Objektbeschreibung
Willkommen in Ihrer neuen Bürofläche im Herzen von Linz!
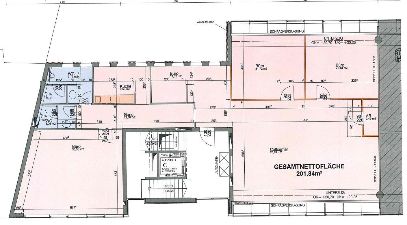
In der 5. Etage eines modernen Gebäudes erwartet Sie eine großzügige Bürofläche von 201,84 m², die nicht nur durch ihre ideale Lage besticht, sondern auch durch eine Vielzahl an Annehmlichkeiten, die Ihren Arbeitsalltag angenehm gestalten.
Der Mietpreis von 3.420,82 € bietet
Mehr lesen
Adresse: Blumauerstraße 43/ 5.Etage
Ort: Linz
Bezirk: 4020
Bundesland: Oberösterreich
PLZ: 4020
Land: Österreich
Objekt ID: 2812168
Nutzfläche: 0 m2
Gesamtfläche: 202 m2
Ziimmer insgesamt: 0
Schlafzimmer: 0
Badezimmer: 0
Miete (netto) €: 1917.48
USt €: 493.7
Nutzungsart: Gewerbe
Provisionspflichtig: ja
Kaution: 11.140,00 €
HWB: 154,13 kWh/(m²*a)
Energieausweis Art: Bedarf
Beziehbar: 01.04.2026
Max. Mietdauer: unbefristet
Etage: 5. Etage
WC: 2
Abstellräume: 1
barrierefrei
Personenaufzug
Abstellraum
Teppich
Klimaanlage
Teeküche
Tiefgarage










