Objektbeschreibung
Alle verfügbaren Wohnungen unter: www.accenta-immo.at/stuwer60 [https://www.accenta-immo.at/stuwer60]
DAS PROJEKT
Das aufwendig revitalisierte Wohnhaus im beliebten Stuwerviertel vereint den Charme historischer Architektur mit modernem Wohnkomfort. Insgesamt stehen für Investoren 20 Einheiten zur Verfügung – davon 14 mit der Widmung „Beherbergungsstätte“ zur Kurzzeitvermietung und 6 unbefristet vermietete Wohnungen.
MIETEN-POOL-MODELL MIT SORGLOS-VERMIETUNGS-KONZEPT:
* professionelles,
Mehr lesen
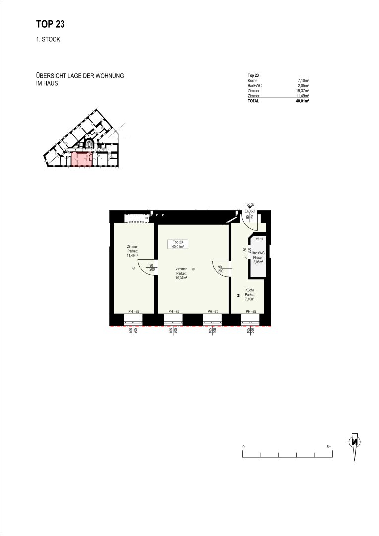
Objekt ID: 2812279
Preis: € 196.914
Nutzfläche: 40 m2
Gesamtfläche: 0 m2
Ziimmer insgesamt: 2
Schlafzimmer: 2
Badezimmer: 1
Nutzungsart: Anlage
Provisionspflichtig: ja
Provision: 3% des Kaufpreises zzgl. 20% USt.
HWB: 39,10 kWh/(m²*a)
HWB Klasse: B
FGEE: 0.7
E-Ausweis Gültig Bis:: 03.11.2034
Energieausweis Art: Bedarf
Etage: 1. Etage
WC: 1
vollmöbliert
Zentralheizung





