Erweiterte Suche
Suchagent aktivieren
Exklusive Anzeigen

23. Bezirk!! Sonnendurchflutetes Büro 360°- 3D Besichtigung!!!

€ 1.799,66

,

4 Zimmer
zu Favoriten hinzufügen
teilen
Suchergebnisse

Objektbeschreibung

Lassen Sie Sich von unserer 360°- 3D Besichtigung überzeugen – Von der Parkbank, vom Sofa oder auch vom Bett, gemütlich über Handy, Tablett, Computer oder Ihrem Internetfähigen Fernseher.

360°- 3D Besichtigung Link: https://my.matterport.com/show/?m=yFj4tztpeVt

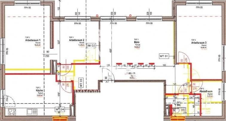
Dieses moderne Mietobjekt entspricht den aktuellen technischen Ansprüchen und ist bestehend  (ca. 109 m²)  und befindet sich in
Mehr lesen

Ort:
Bezirk:
Bundesland:
PLZ: 1230
Land: Österreich
Objekt ID: 2818737
Preis: € 1.799.66
Nutzfläche: 0 m2
Gesamtfläche: 109 m2
Ziimmer insgesamt: 4
Schlafzimmer: 4
Badezimmer: 0
Miete (netto) €: 1499.72
USt €: 299.94
Gesamtbelastung €: 1799.66
Nutzungsart: Gewerbe
Provisionspflichtig: ja
Kaution: 4 Bruttomonatsmieten
HWB: 42,10 kWh/(m²*a)
HWB Klasse: B
FGEE: 0.73
E-Ausweis Gültig Bis:: 03.03.2031
Energieausweis Art: Bedarf
Beziehbar: 15.01.26
Etage: 1. Etage
WC: 1
Abstellräume: 1
Neubau
Einbauküche
Personenaufzug
Parkett
Fußbodenheizung
Fahrradraum
Abstellraum
Klimaanlage
Gartennutzung

Ähnliche Objekte

vergleichen
5qOTmjXnWV4MMh2tkhjl76
PROVISIONSFREI

Perfekter Grundriss und große Loggia: Hofsei...

€ 2.199
3
Schlafzimmer
1
Badezimmer
96 m2
Größe
Februar 28, 2026
vergleichen
58mWPjvIP72NmPSgkng5qA
PROVISIONSFREI

Schöne 2-Zimmer Wohnung in traumhafter Lage ...

€ 999
2
Schlafzimmer
1
Badezimmer
54 m2
Größe
Februar 28, 2026
vergleichen
636cjwYRN1B2CQz6V9jkVm
PROVISIONSFREI

Kleine 2-Zimmer Wohnung in Top Lage – ...

€ 849
2
Schlafzimmer
1
Badezimmer
31 m2
Größe
Februar 28, 2026

Vergleichen