Objektbeschreibung
Baugrundstück in Ottnang ohne Bauzwang
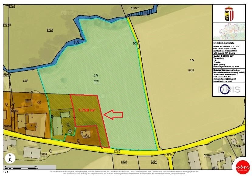
Zum Verkauf steht ein 1.728 m² großes Baugrundstück in Ottnang am Hausruck (neben Untermühlau 5), das sich durch seine leicht abfallende Lage ideal für unterschiedliche Bauvorhaben eignet.
Die Liegenschaft verfügt über eine Dorfwidmung, wodurch vielfältige Nutzungsmöglichkeiten gegeben sind.
Ein besonderer Vorteil: Es besteht kein Bauzwang.
Mehr lesen
Objekt ID: 2825026
Preis: € 169.000
Nutzfläche: 0 m2
Gesamtfläche: 1.728 m2
Ziimmer insgesamt: 0
Schlafzimmer: 0
Badezimmer: 0
Nutzungsart: Anlage
Provisionspflichtig: ja
Provision: 3% des Kaufpreises zzgl. 20% USt.












