Erweiterte Suche
Suchagent aktivieren
Exklusive Anzeigen

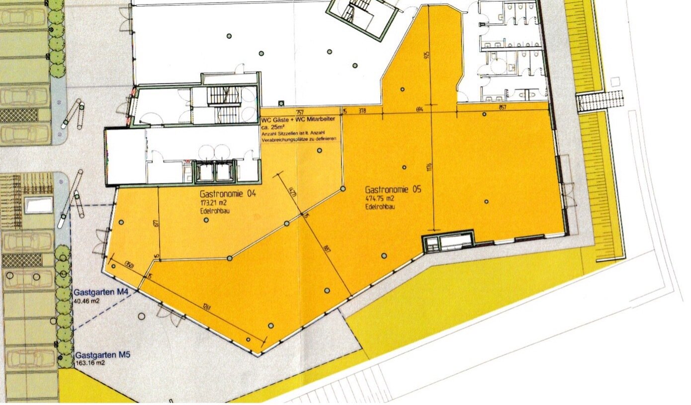
GROSSGASTRONOMIE/BETRIEBSFLÄCHE – erstes Objekt an der Zufahrt zum Industriezentrum NÖ Süd – 472 m²

,

zu Favoriten hinzufügen
teilen
Suchergebnisse

Objektbeschreibung

Der angegebene Preis von € 8.260.- versteht sich für die 472 m² Innenfläche mitsamt Gartenanteil (163 m²).

 

ACHTUNG WICHTIGE INFORMATION: GEMÄSS DEN VORGABEN UNSERER ANBIETER – ABGEBER WERDEN DETAILLIERTE ANGABEN ÜBER DIE INTERESSENTEN BENÖTIGT. IM FALLE IHRER ANFRAGE BITTEN WIR UM ANGABE VON: FIRMENNAME / NAME, ADRESSE, TELEFON, E-MAIL.

Auf
Mehr lesen

Bezirk:
Bundesland:
PLZ: 2351
Land: Österreich
Objekt ID: 2826817
Nutzfläche: 0 m2
Gesamtfläche: 472 m2
Ziimmer insgesamt: 0
Schlafzimmer: 0
Badezimmer: 0
Miete (netto) €: 8260
Betriebskosten €: 1935.2
Nutzungsart: Gewerbe
Beziehbar: ehest
Etage: EG

Vergleichen