Objektbeschreibung
Wir freuen uns, Ihnen eine attraktive Gewerbeeinheit anbieten zu können:
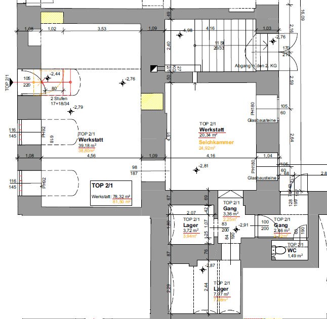
Top 2/1
*
Werkstatt
*
Fläche: ca. 80m²
*
Zustand: Wird derzeit generalsaniert und erhält einen Fischgrättparkett. (Fertigstellung bis Ende März)
*
Preis: EUR 319.000€
Diese Einheit befindet sich in der Seitenstraße
Mehr lesen
Objekt ID: 2840080
Preis: € 319.000
Nutzfläche: 0 m2
Gesamtfläche: 80 m2
Ziimmer insgesamt: 0
Schlafzimmer: 0
Badezimmer: 0
Nutzungsart: Gewerbe
Provisionspflichtig: ja
Provision: 3% des Kaufpreises zzgl. 20% USt.
HWB: 203,70 kWh/(m²*a)
HWB Klasse: F
FGEE: 1.99
E-Ausweis Gültig Bis:: 26.02.2033
Energieausweis Art: Bedarf
Etage: EG
Etagenheizung
Gas
Ähnliche Objekte
++BESTLAGE++ Tolle 2-Zimmer Neubauwohnung ...
€ 329.900
2
Schlafzimmer
1
Badezimmer
59 m2
Größe
März 3, 2026





