Objektbeschreibung
Der Business-Hub Villach-West ist ein vielseitiges Gewerbeensemble aus dem Baujahr 1980, das Büroflächen, Industriehallen sowie repräsentative Präsentationsbereiche in einem funktionalen Gesamtkonzept vereint.
Das Areal bietet flexible Flächenlösungen für Unternehmen unterschiedlichster Branchen – von Verwaltung und Dienstleistung über Handel bis hin zu Produktion und Lagerlogistik.
Die Einheiten variieren in Größe und
Mehr lesen
Objekt ID: 2840989
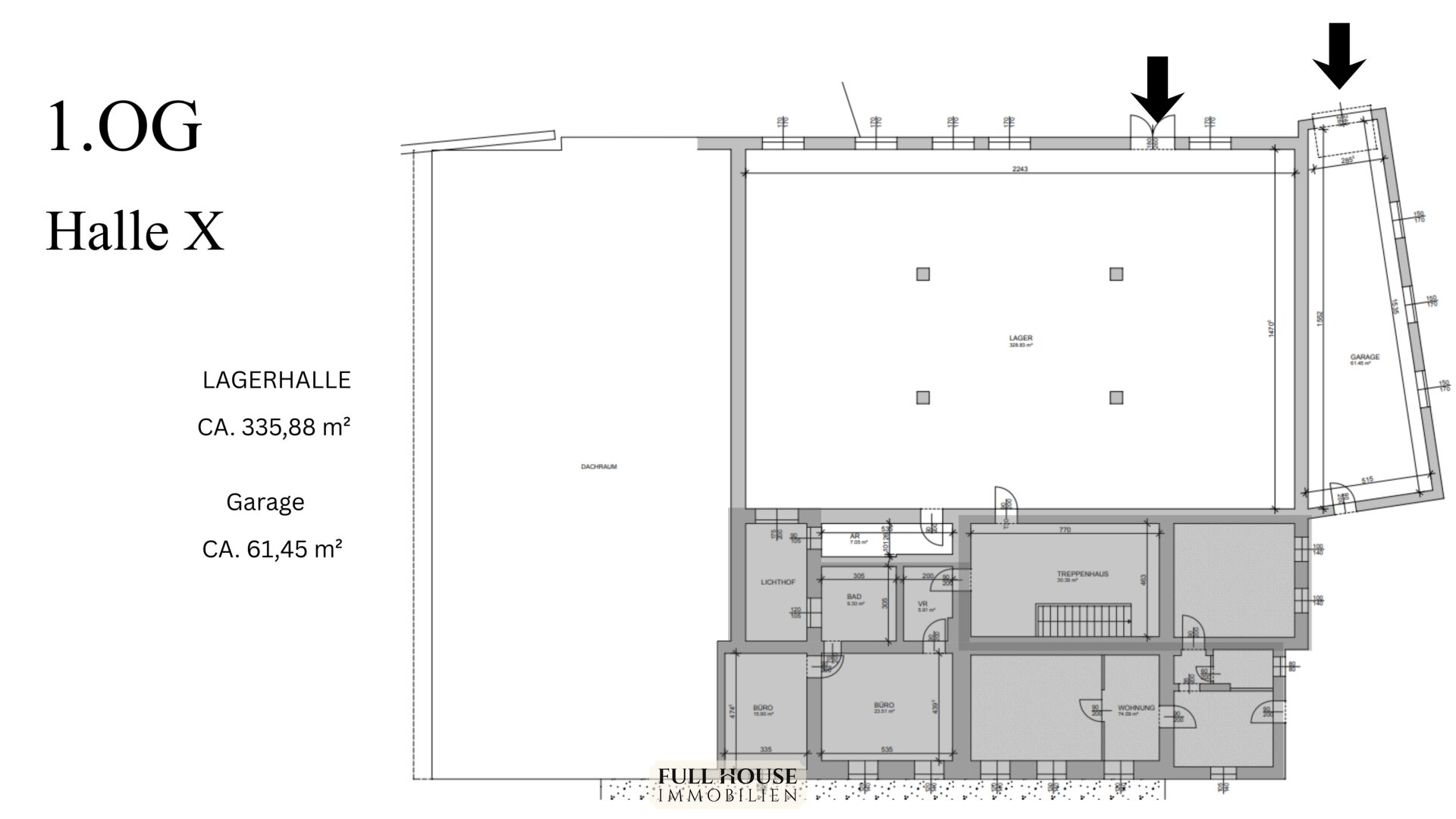
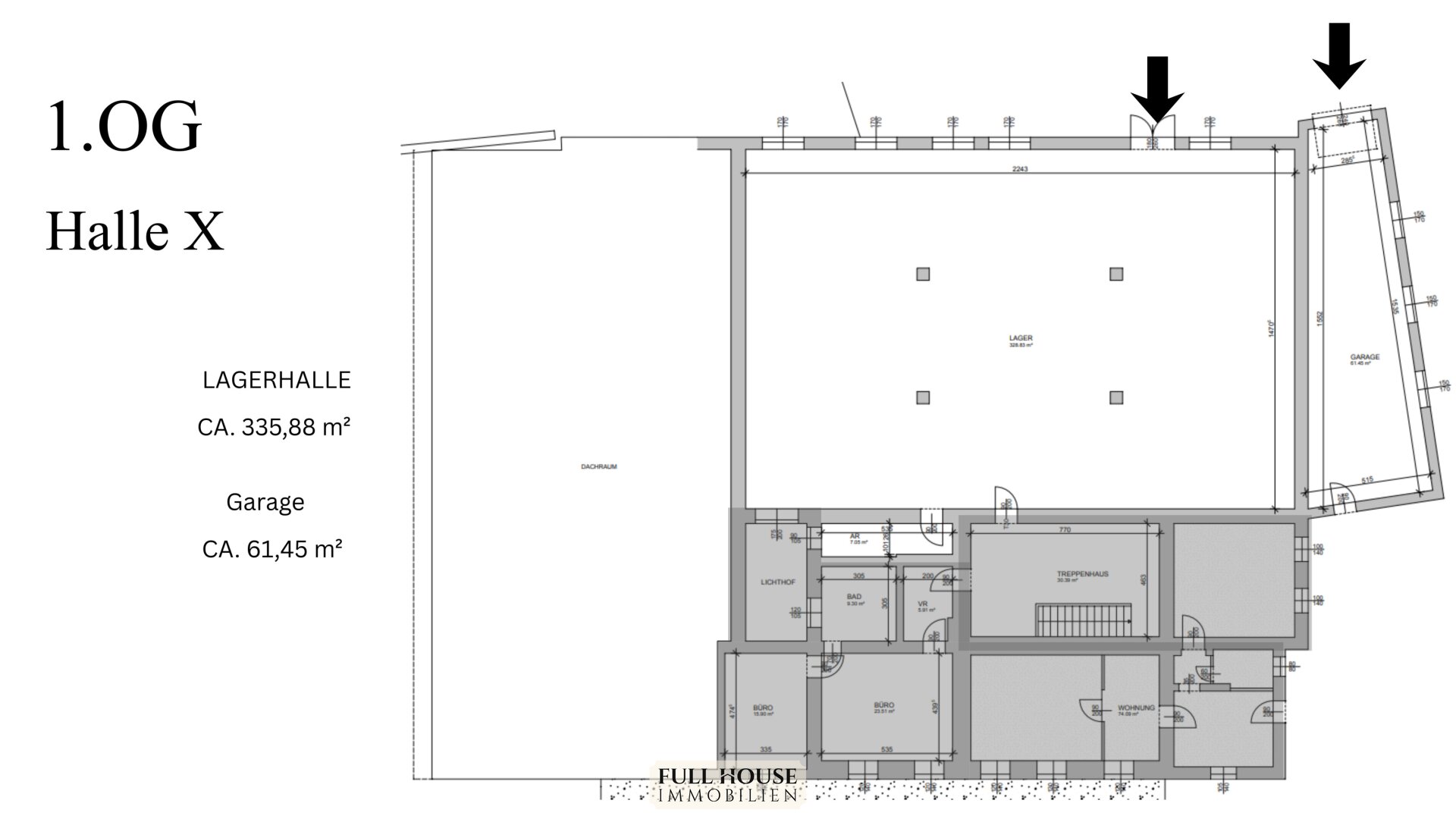
Nutzfläche: 0 m2
Gesamtfläche: 336 m2
Ziimmer insgesamt: 1
Schlafzimmer: 1
Badezimmer: 1
Miete (netto) €: 1680
USt €: 415.3
Nutzungsart: Gewerbe
Provisionspflichtig: ja
Kaution: 4 Bruttomonatsmieten
HWB: 35,70 kWh/(m²*a)
HWB Klasse: B
FGEE: 0.9
E-Ausweis Gültig Bis:: 21.05.2034
Energieausweis Art: Bedarf
Etage: 1. Etage
WC: 1
Abstellräume: 1
Neubau
Freiplatz










