Objektbeschreibung
Wo Design auf Natur trifft – Wohnen für höchste Ansprüche
In begehrter Ruhelage von Hinterbrühl, auf einem sonnigen Grundstück in Hanglage am Ende einer Privatstraße entstehen vier architektonisch anspruchsvolle Einfamilienhäuser in moderner Massivbauweise – jedes mit großzügigem Eigengarten, Südterrassen und privatem Wohngefühl auf höchstem Niveau.
Die Einheiten zeichnen sich
Mehr lesen
Objekt ID: 2867702
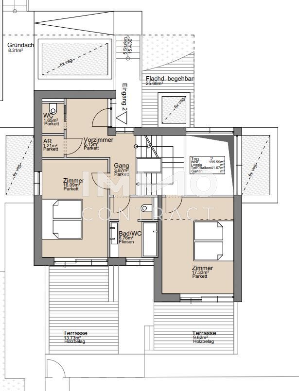
Nutzfläche: 196 m2
Gesamtfläche: 440 m2
Ziimmer insgesamt: 4
Schlafzimmer: 4
Badezimmer: 3
Nutzungsart: Wohnen
Provisionspflichtig: ja
HWB: 35,60 kWh/(m²*a)
HWB Klasse: B
FGEE: 0.61
Energieausweis Art: Bedarf
Balkon/Terrassen - Fläche: 41
Beziehbar: nach Absprache
WC: 2
Gäste-WC
Parkett
Bad mit Fenster
Fußbodenheizung
Freiplatz
Luft-Wärmepumpe
Ähnliche Objekte
Traumliegenschaft mit großer, repräsentative...
€ 4.750.000
8
Schlafzimmer
3
Badezimmer
298 m2
Größe
April 18, 2026















