Erweiterte Suche
Suchagent aktivieren
Exklusive Anzeigen

KUSCHELIGER ALTBAUCHARME : 3 Zimmer, Terrasse ,TOP AUSSTATTUNG ! ERSTBEZUG !

€ 599.000,00

,

803 Zimmer
zu Favoriten hinzufügen
teilen
Suchergebnisse

Objektbeschreibung

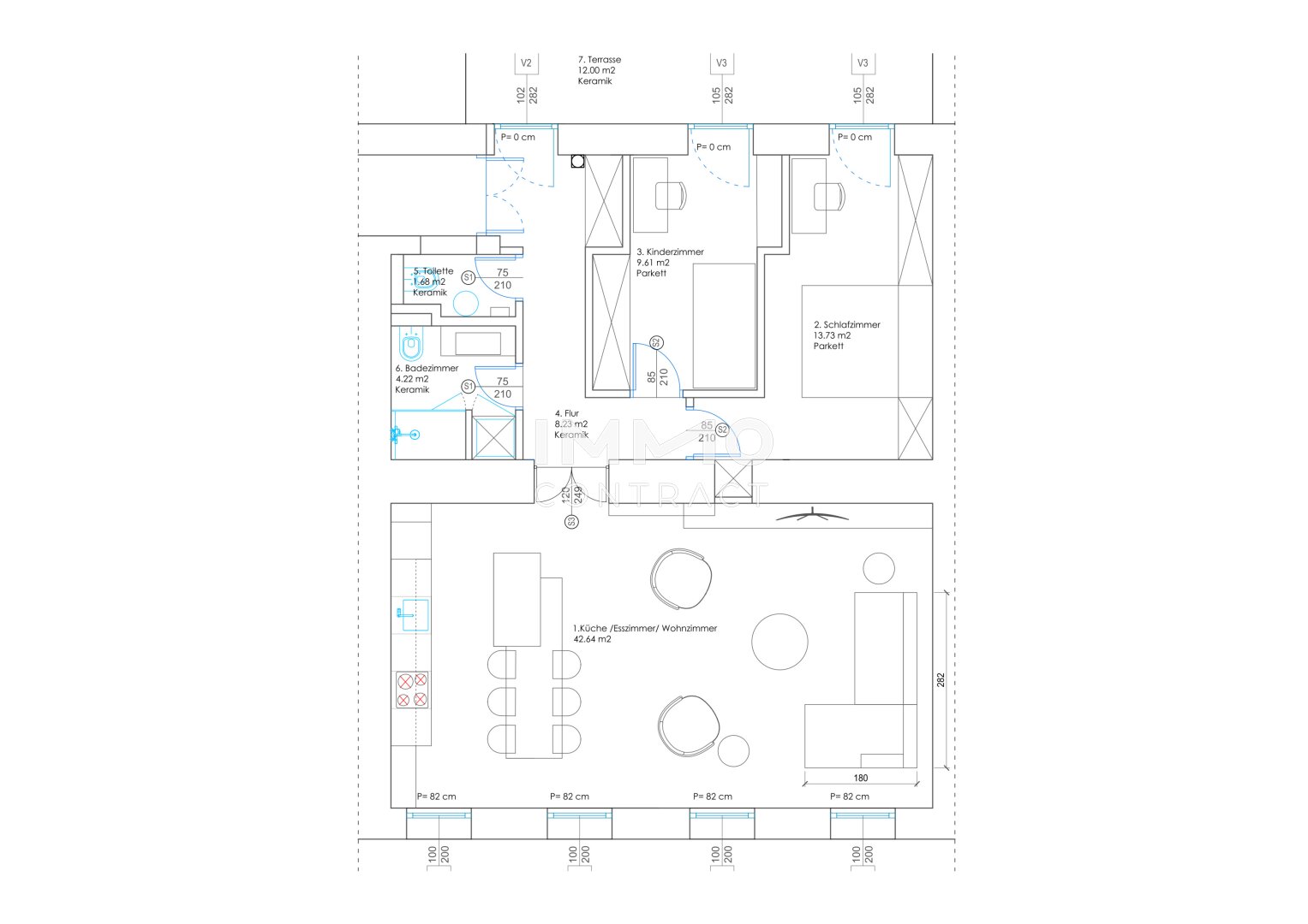
In einem gepflegten Altbau Ecke Nussdorfer Straße und Währinger Gürtel wurde diese 3 Zimmer Wohnung mit Terrasse komplett umgebaut und hochwertig ausgestattet.
Sie können einziehen und glücklich sein- es wurde an alles gedacht.

Im 1. Liftstock erwartet Sie dieser besondere Familientraum mit 3 Zimmern und einer ca. 15 m²
Mehr lesen

Ort:
Bezirk:
Bundesland:
PLZ: 1090
Land: Österreich
Objekt ID: 2868450
Preis: € 599.000
Nutzfläche: 80 m2
Gesamtfläche: 0 m2
Ziimmer insgesamt: 3
Schlafzimmer: 3
Badezimmer: 1
Miete/m2 €: 6845.71
Nutzungsart: Wohnen
Provisionspflichtig: ja
Provision: 3% des Kaufpreises zzgl. 20% USt.
HWB: 126 kWh/(m²*a)
HWB Klasse: D
FGEE: 3.34
E-Ausweis Gültig Bis:: 16.12.2029
Energieausweis Art: Bedarf
Balkon/Terrassen - Fläche: 15
Beziehbar: Vereinbarung nach KV
Etage: 1.OG
WC: 1
vollmöbliert
barrierefrei
Einbauküche
Personenaufzug
Gäste-WC
Altbau
Parkett
Dusche
Fußbodenheizung
Fahrradraum
Klimaanlage

Ähnliche Objekte

vergleichen
Bild 2

Altbaujuwel in der Sechshauser Straße !

€ 438.000 pro Monat
5
Schlafzimmer
118 m2
Größe
April 22, 2026
vergleichen
Bild 2

Idealer Grundriss, gepflegtes Haus, tolle Au...

€ 325.000 pro Monat
3
Schlafzimmer
1
Badezimmer
76 m2
Größe
April 22, 2026
vergleichen
IMG_7240

Wohnungspaket mit Garagenplatz in der Speisi...

€ 299.000 pro Monat
2
Schlafzimmer
1
Badezimmer
54 m2
Größe
April 22, 2026

Vergleichen