Objektbeschreibung
Wohnen Am Langen Felde 24 – fertiggestellt, hochwertig & gut angebunden
Im 22. Wiener Gemeindebezirk, nahe der U1-Station Kagraner Platz, stehen bereits fertiggestellte Eigentumswohnungen zum Einzug bereit. Die Wohnhausanlage mit vier Stiegen und Tiefgarage überzeugt durch eine erstklassige, energieeffiziente Bauweise mit Fernwärme, Photovoltaikanlage und Fußbodenheizung – ideal für alle, die
Mehr lesen
Objekt ID: 2868600
Preis: € 525.190
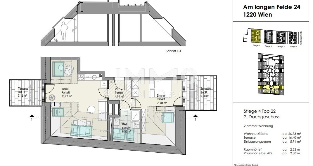
Nutzfläche: 67 m2
Gesamtfläche: 0 m2
Ziimmer insgesamt: 2
Schlafzimmer: 2
Badezimmer: 1
Miete/m2 €: 7009.08
Nutzungsart: Wohnen
Provisionspflichtig: nein
HWB: 24,40 kWh/(m²*a)
HWB Klasse: A
FGEE: 0.71
E-Ausweis Gültig Bis:: 08.04.2032
Energieausweis Art: Bedarf
Balkon/Terrassen - Fläche: 16
Beziehbar: ab sofort
Etage: 3. OG
Fußbodenheizung
Fahrradraum
Abstellraum
Massiv
Massivbauweise
Ähnliche Objekte
Idealer Grundriss, gepflegtes Haus, tolle Au...
€ 325.000 pro Monat
3
Schlafzimmer
1
Badezimmer
76 m2
Größe
April 22, 2026
Wohnungspaket mit Garagenplatz in der Speisi...
€ 299.000 pro Monat
2
Schlafzimmer
1
Badezimmer
54 m2
Größe
April 22, 2026











