Objektbeschreibung
Nachhaltig Wohnen. Dieses Projekt ist klimaaktiv GOLD zertifiziert und ausgezeichnet mit dem Energy Globe Award.
Alle noch freie Wohnungen finden Sie auf unserer Projekt Seite.
https://www.immocontract.at/projekt/wohnpark-ober-grafendorf/
Die Wohnungen überzeugen mit modernen, zentral begehbaren Grundrissen und hochwertiger Ausstattung. Jede der Wohnungen verfügt über einen Außenbereich. Durch die versetzte Anordnung entstehen
Mehr lesen
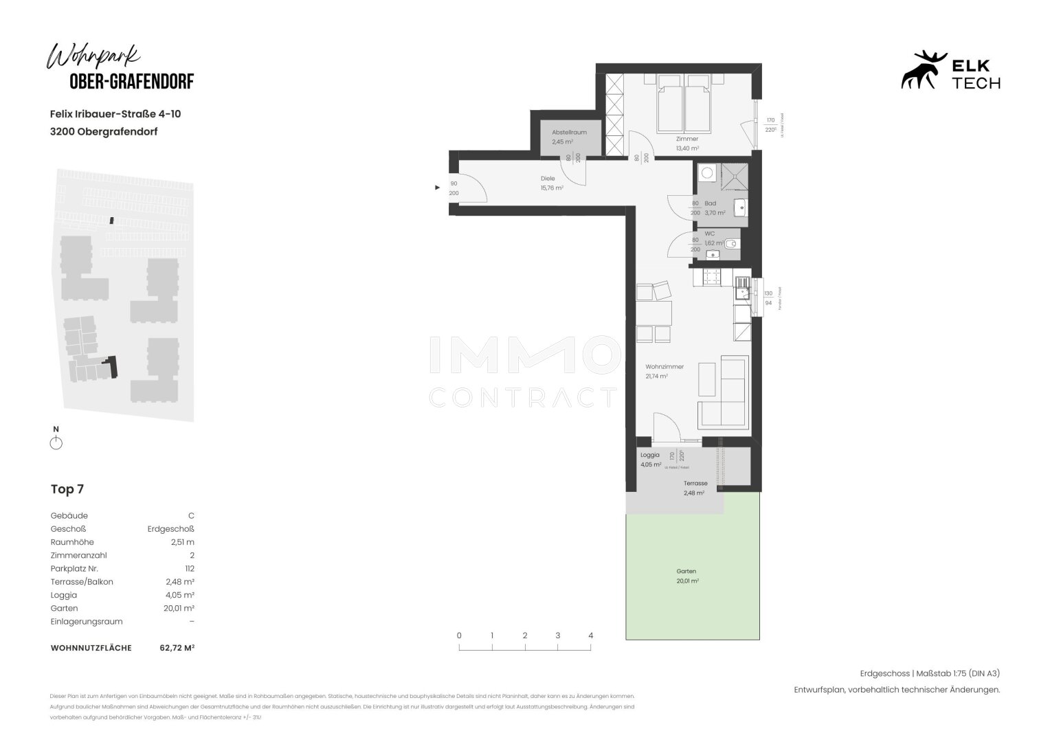
Objekt ID: 2869886
Preis: € 207.000
Nutzfläche: 63 m2
Gesamtfläche: 0 m2
Ziimmer insgesamt: 2
Schlafzimmer: 2
Badezimmer: 1
Miete/m2 €: 3043.67
Nutzungsart: Wohnen
Provisionspflichtig: nein
Provision: Provision bezahlt der Abgeber.
HWB: 23,80 kWh/(m²*a)
HWB Klasse: A
FGEE: 0.67
E-Ausweis Gültig Bis:: 02.10.2030
Energieausweis Art: Bedarf
Balkon/Terrassen - Fläche: 6
Beziehbar: Frühjahr 2026
Etage: EG+Garten
WC: 1
Personenaufzug
Fußbodenheizung
Fernwärme
Gartennutzung
Holz(rahmen)
Holzbauweise
Ähnliche Objekte
3-Zimmer Whg. mit ca. 26m² Außenbereich im 3...
€ 275.000
3
Schlafzimmer
1
Badezimmer
70 m2
Größe
März 5, 2026












