Objektbeschreibung
Bezugsfertiges Wohnen nahe der Alten Donau
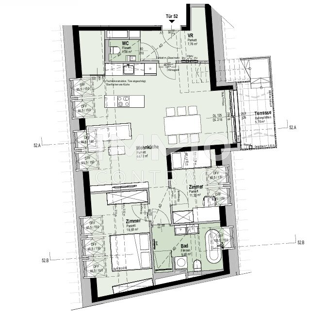
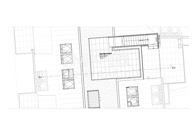
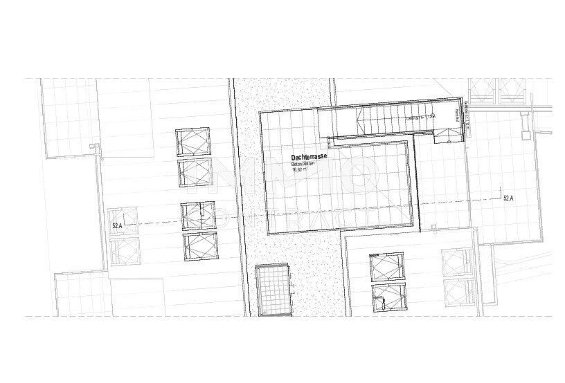
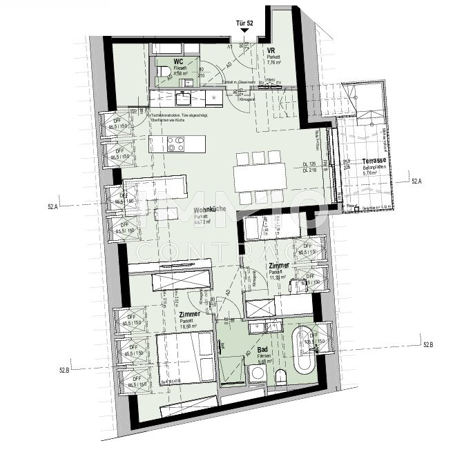
Willkommen in Ihrem neuen Zuhause: Diese großzügige, zentral begehbare 3-Zimmer-Dachgeschoßwohnung überzeugt mit rund 98 m² Wohnnutzfläche, einer Terrasse auf Wohnebene sowie einer privaten Dachterrasse mit beeindruckendem Rundumblick. Großflächige Dachfenster durchfluten die Räume mit natürlichem Licht, während Klimasplitgeräte in jedem Zimmer auch an heißen Sommertagen
Mehr lesen
Objekt ID: 2873533
Preis: € 749.700
Nutzfläche: 98 m2
Gesamtfläche: 98 m2
Ziimmer insgesamt: 3
Schlafzimmer: 3
Badezimmer: 1
Nutzungsart: Anlage
Provisionspflichtig: ja
Provision: 3% des Kaufpreises zzgl. 20% USt.
HWB: 22,90 kWh/(m²*a)
HWB Klasse: A
FGEE: 0.71
E-Ausweis Gültig Bis:: 01.11.2033
Energieausweis Art: Bedarf
Balkon/Terrassen - Fläche: 22
Beziehbar: sofort
Etage: 2. DG / 2.DG
WC: 1
barrierefrei
Neubau
Personenaufzug
Parkett
Bad mit Fenster
Fußbodenheizung
Fahrradraum
rollstuhlgerecht
schlüsselfertig mit Bodenplatte
Fernwärme
schlüsselfertig mit Keller
seniorengerecht
Niedrigenergiehaus
Ähnliche Objekte
4 Zimmer I Eigengarten I Erstbezug [A\]
€ 1.740.000
4
Schlafzimmer
2
Badezimmer
129 m2
Größe
April 20, 2026
Dachwohnung mit Terrasse I Erstbezug A\
€ 1.095.000
3
Schlafzimmer
2
Badezimmer
88 m2
Größe
April 20, 2026


![4 Zimmer I Eigengarten I Erstbezug [A] 1AGGCuUTSwdiKmTGCCoBtm 2](https://gesucht-gefunden.at/wp-content/uploadstorage/2026/04/1AGGCuUTSwdiKmTGCCoBtm-2-525x350.jpg)













