Objektbeschreibung
Miete mit Kaufoption, Erstbezug, Fertigstellung Oktober 2025!
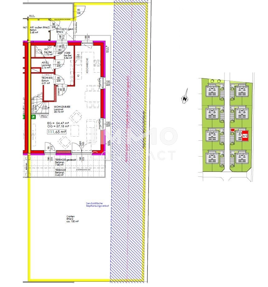
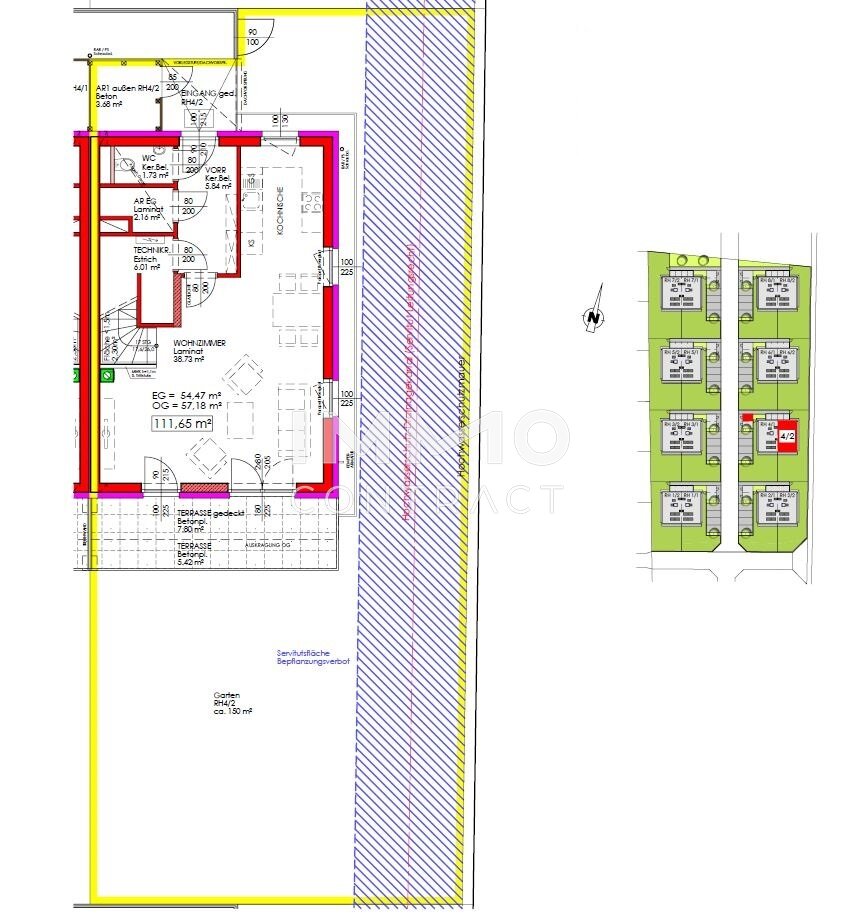
Hier wurden 16 Doppelhaushälften mit großzügigen Freiflächen errichtet.
Die Erschließung der Reihenhäuser erfolgt über überdachte Eingangsbereiche, welche mit einem Außenabstellraum kombiniert sind.
Die Komponenten der Haustechnik sind unter der Treppe situiert.
Ebenso ist auch das helle Wohnzimmer mit der Kochnische
Mehr lesen
Objekt ID: 2874185
Preis: € 1.234.26
Nutzfläche: 112 m2
Gesamtfläche: 0 m2
Ziimmer insgesamt: 4
Schlafzimmer: 4
Badezimmer: 1
Miete (netto) €: 1122.05
USt €: 112.21
Gesamtbelastung €: 1234.26
Nutzungsart: Wohnen
Provisionspflichtig: nein
HWB: 27 kWh/(m²*a)
HWB Klasse: B
FGEE: 0.53
E-Ausweis Gültig Bis:: 20.09.2032
Energieausweis Art: Bedarf
Balkon/Terrassen - Fläche: 13
Beziehbar: Herbst 2025
WC: 1
Gäste-WC
Fußbodenheizung
Abstellraum
Luft-Wärmepumpe
Massiv
Massivbauweise
Gartennutzung

















