Objektbeschreibung
Im Mittelpunkt von Niederösterreich!
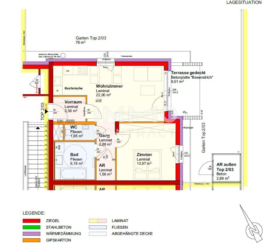
Kapelln – Quellengasse
Hier wurden 6 Reihenhäuser und 26 Wohnungen mit großzügigen Freiflächen errichtet,
welche in Wohnungseigentum bzw. in Miete mit Kaufoption provisionsfrei vergeben werden.
Ausstattung:
Fußbodenheizung
Wohnungen mittels Pelletsheizung, Reihenhäuser Luft-Wasser Wärmepumpe
Reihenhäuser mit Photovoltaikanlage
Solaranlage je Wohnhaus
Mehr lesen
Objekt ID: 2875311
Preis: € 219.553.26
Nutzfläche: 52 m2
Gesamtfläche: 0 m2
Ziimmer insgesamt: 2
Schlafzimmer: 2
Badezimmer: 1
Miete/m2 €: 3998.42
Nutzungsart: Wohnen
Provisionspflichtig: nein
Provision: Provision bezahlt der Abgeber.
HWB: 22,60 kWh/(m²*a)
HWB Klasse: A
FGEE: 0.51
E-Ausweis Gültig Bis:: 01.01.2033
Energieausweis Art: Bedarf
Balkon/Terrassen - Fläche: 6
Beziehbar: 16.01.2026
Etage: EG
WC: 1
Gäste-WC
Fußbodenheizung
Pellets
Fahrradraum
Abstellraum
Massiv
Massivbauweise
Gartennutzung











