Objektbeschreibung
Stellen Sie sich vor, wie Sie an einem sonnigen Morgen auf Ihrem großzügigen Balkon sitzen, der mit Blick in den idyllischen Innenhof ausgestattet ist. Hier können Sie entspannen, die frische Luft genießen und den Alltag hinter sich lassen.
Die Wohnung besticht durch ihre moderne Architektur und durchdachte Raumaufteilung. Die bereits
Mehr lesen
Objekt ID: 2878527
Preis: € 460.800
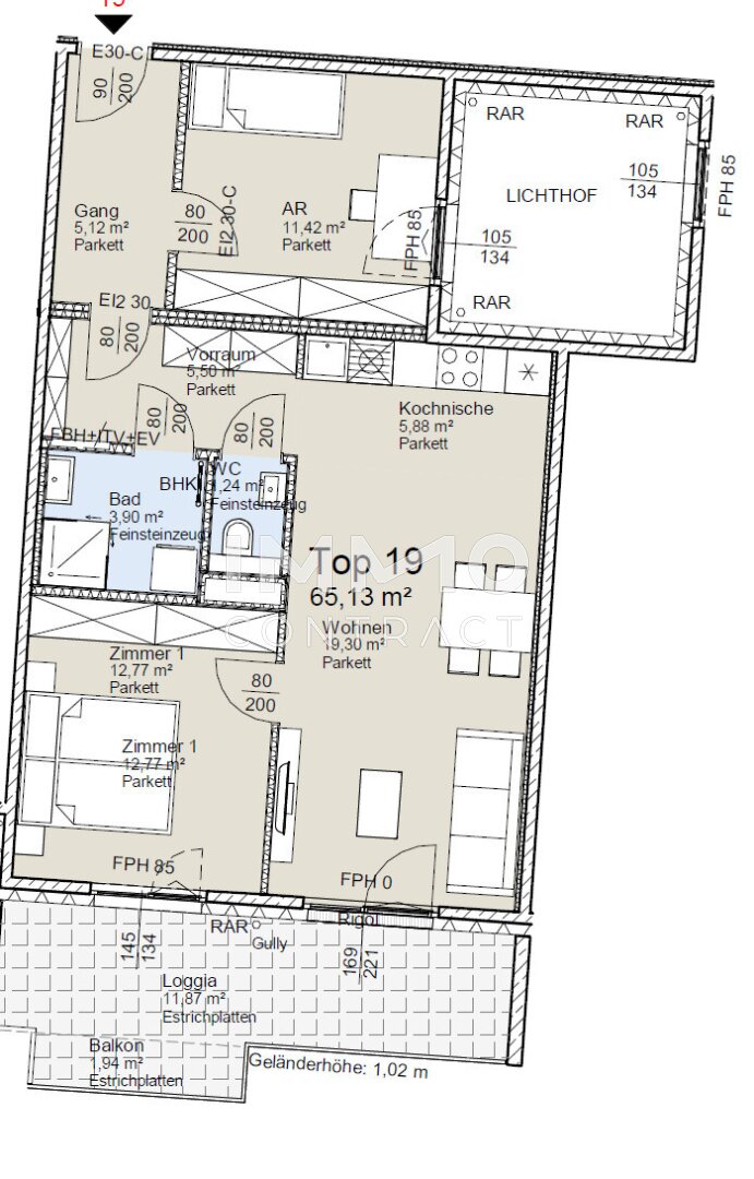
Nutzfläche: 65 m2
Gesamtfläche: 0 m2
Ziimmer insgesamt: 3
Schlafzimmer: 3
Badezimmer: 1
Miete/m2 €: 5919.84
Nutzungsart: Wohnen
Provisionspflichtig: nein
Anzahl Balkone: 1
Balkon/Terrassen - Fläche: 13
Beziehbar: sofort
Etage: 2.OG
WC: 1
Balkon
Einbauküche
Personenaufzug
Gäste-WC
Dusche
Fußbodenheizung
Fahrradraum
Abstellraum
Ähnliche Objekte
U1 Kagraner Platz! TOWNHOUSE auf 2 ETAGEN IN...
€ 799.000
4
Schlafzimmer
2
Badezimmer
116 m2
Größe
März 5, 2026
Hauptbahnhof: Provisionsfreie Zweizimmer-Woh...
€ 330.000
2
Schlafzimmer
1
Badezimmer
51 m2
Größe
März 5, 2026
Attraktive Zweizimmer-Wohnung beim Hauptbahn...
€ 390.000
2
Schlafzimmer
1
Badezimmer
51 m2
Größe
März 5, 2026













